Society World werkt intensief samen met Baerz & Co Luxury Homes International, het trefpunt waar exclusieve huizen en veeleisende kopers samenkomen. Hieronder vindt u een geselecteerd aanbod van de meest exclusieve huizen op alle hot-spots in 20 landen rond de Middellandse zee, de Alpen, Mexico en Dubai.

Villa te koop in WOUW

WOUW Akkerstraat 5 a - 4724 SX Nederland


Erwin Schuurbiers profile image
Erwin Schuurbiers
Real Estate Agent
+31 164685925
info@helmigmakelaardij.nl

Helmig Makelaardij en Taxatieburo o.z. B.V.
Dorpsstraat 107
4661 HN Halsteren
NETHERLANDS
+31 164-685925
www.helmigmakelaardij.nl
info@helmigmakelaardij.nl

Woonoppervlakte
231m2
Perceeloppervlakte
1010m2
Slaapkamers
4

Omschrijving

Een parel in Wouw – luxe, ruimte en efficiëntie op topniveau

Aan de rand van het bourgondische Wouw, op een rustige locatie met optimale privacy en uitzicht op de molen, staat deze stijlvolle notariswoning. De woning is gebouwd in 2008 en is zichtbaar hoogwaardig afgewerkt; zij ademt degelijkheid en comfort. Deze parel in Wouw combineert karakter met modern wooncomfort.

Dankzij de duurzame voorzieningen – waaronder een bodemwarmtepomp en 29 zonnepanelen – beschikt de woning over het uitstekende energielabel A++.

Met een woonoppervlakte van ca. 231 m² biedt de woning een royale woonbeleving met lichte, comfortabele en ruimtelijke vertrekken. De living vormt het warme hart van het huis, met zicht op de tuin en een halfopen woonkeuken met complete inbouwapparatuur.

Daarnaast beschikt de begane grond over een werk- of studeerkamer, een praktische bijkeuken en een ruime multifunctionele vleugel. Deze vleugel kan dienen als kantoor, salon of praktijkruimte, of – in combinatie met de garage met volwaardige verdieping – als comfortabele aanleunwoning. Een eigen toilet en keukenblok zijn hier reeds aanwezig.

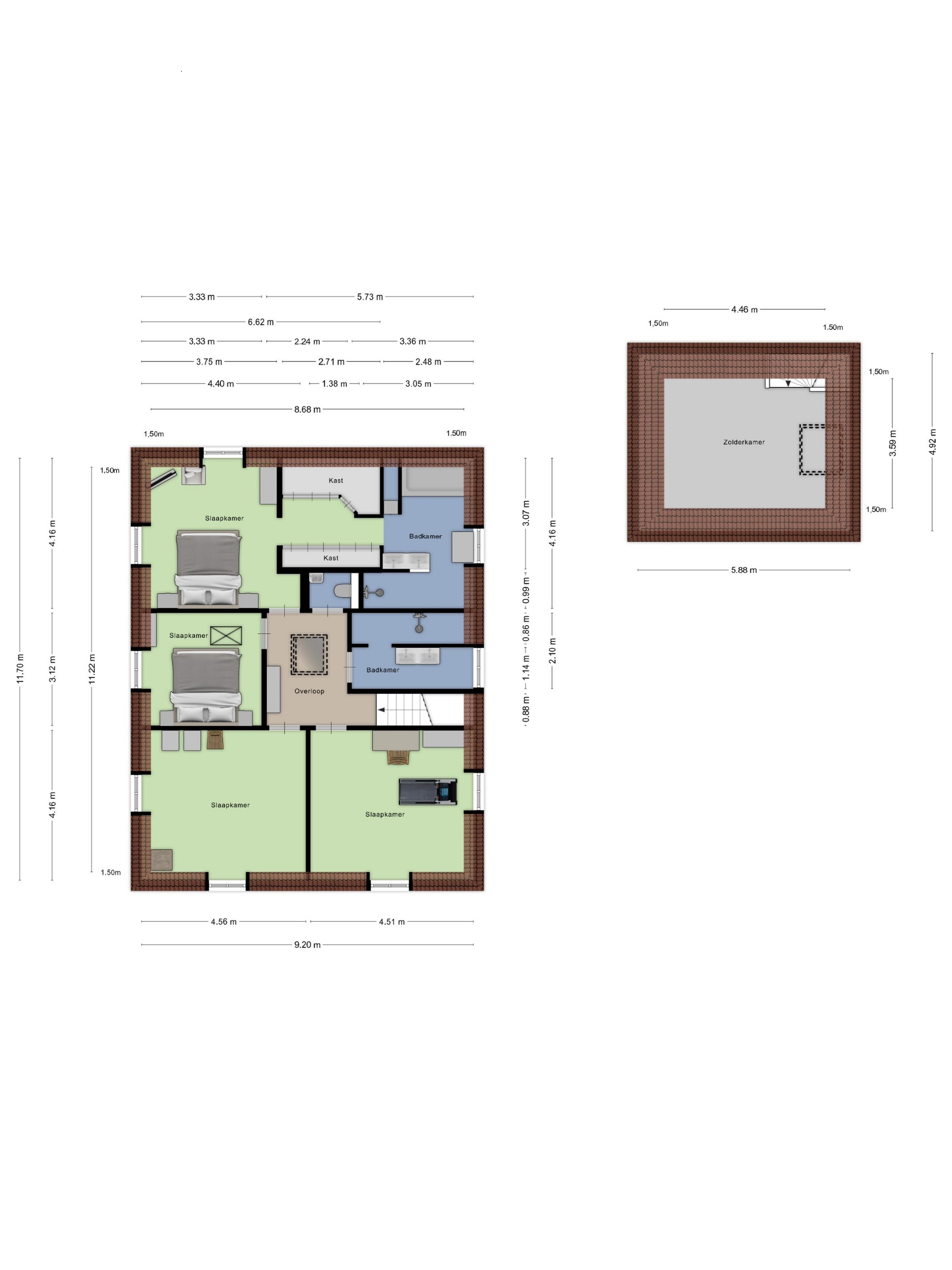
Op de verdieping bevinden zich vier slaapkamers, waaronder een ruime hoofdslaapkamer met inloopkast en luxe complete en-suite badkamer. Voor kinderen of gasten is er een tweede volwaardige badkamer en een separaat toilet. Een fraaie lichtkoepel voorziet de overloop van veel natuurlijk daglicht.

Met een trap kunt U naar de 2e verdieping, een over de volledig breedte doorlopende ruimte met mogelijkheden voor een hobbyruimte of als royale opslagruimte.

Het buitenleven is goed verzorgd. De tuin is fraai aangelegd en uitstekend onderhouden, met natuurstenen terrassen, veel groen en een automatische beregeningsinstallatie. De zonnige ligging, de dubbele garage met gepolijste en gecoate betonvloer en de royale oprit – bereikbaar via een tweedelige elektrische toegangspoort die klasse en kwaliteit uitstraalt. Prachtig uitzicht op landerijen en de molen van Wouw.

INDELING:
Begane grond:
Hal / entree: met trap naar de eerste verdieping; wanden gestuct; natuurstenen vloer; plafond gestuct.

Meterkast: uitgebreide installatie met 17 groepen, 3?faseaansluiting, 2 zonnepanelengroepen, 6 aardlekschakelaars en alarmsysteem.

Toilet: modern betegeld, met wandcloset en fonteintje; wanden in stucwerk en natuursteen; natuurstenen vloer; plafond met inbouwspots.

Woonkamer (ca. 75,5 m² incl. keuken): royale L?vormige living met openslaande tuindeuren naar tuin/terras. De stijlvolle en elegante stenen schouw met inbouwhaard vormt een blikvanger in het interieur. De wanden ( met geïntegreerde luidsprekers ) zijn gestuct, natuurstenen vloer en het plafond met diverse lichtpunten en inbouwspots.

Woonkeuken: moderne Bosch/Miele?inbouwapparatuur met kook-/spoel-eiland en geïntegreerde eettafel; composiet werkblad met dubbele spoelbak en Quooker; Miele inductiekookplaat met Miele afzuigschouw; kastenwand met Bosch inbouw koffiemachine, Bosch koelkast (met freshzone), Bosch vriezer, 2x Bosch combi?oven/magnetron, ATAG elektrische oven (90 cm), Miele vaatwasser op ergonomische hoogte.

Werk-/speelkamer: wanden gestuct, natuurstenen vloer, plafond gestuct.

Bijkeuken: wasmachine- en drogeraansluiting op ergonomische hoogte, praktische stortkoker voor de was vanuit de badkamer, wanden gestuct, natuurstenen vloer, plafond met inbouwspots, deur naar tuin/terras en deur naar de multifunctionele vleugel.

Multifunctionele vleugel (met zelfstandige entree): ideaal als kantoor, praktijkruimte, salon of aanleunwoning; bestaat uit twee ruimten; voorzien van keukenblok en separaat toilet; natuurstenen vloer; plafond met inbouwspots; deur naar de garage.

1e verdieping:
Ruime Overloop: met lichtkoepel en toegang tot de slaapkamers en centraal toilet.

Hoofdslaapkamer: met inloopkasten; wanden gestuct; PVC?vloer; plafond met inbouwspots.

Luxe Badkamer en-suite: afgewerkt met natuursteen; voorzien van ruim ligbad, inloopdouche, dubbele wastafel en stortkoker richting bijkeuken.

3 overige slaapkamers: elk met twee dakkapellen; wanden gestuct; PVC?vloer; plafonds met inbouwspots; vanuit de middelste slaapkamer een vlizotrap naar de 2e verdieping.

2e luxe badkamer (kinderen/gasten): uitgevoerd in natuursteen; met dakkapel; royale inloopdouche en dubbele wastafel.

Toilet: separaat; met wandcloset en fonteintje. Wanden gestuct en afgewerkt met natuursteen.

2e verdieping:
Royale bergzolder (ca. 50 m²): met lichtkoepel en doorlichting naar de 1e verdieping; dakbeschot ; houten draagvloeren; mogelijkheid voor uitbreiding voor hobbykamer of twee volwaardige kinderslaapkamers te creëren bij plaatsing van een vaste trap.

Bijgebouwen:
Dubbele garage (ca. 37 m²): direct aan de woning; twee elektrisch bedienbare sectiedeuren naar de oprit; separate loopdeur naar de tuin; opstelplaats warmtepompinstallatie en omvormer zonnepanelen; met gepolijste en gecoate betonvloer ; vaste trap naar de 1e verdieping en kamer ( man-cave/chill-room met bar – ca. 16 m²) boven de garage incl. opstelplaats voor Mechanische Ventilatie unit en centraal stofzuigsysteem t.b.v. de volledige woning.

Buitenmuur garage: een laadpunt voor het elektrisch laden van auto’s in eigen beheer.

Tuin:
Fraai aangelegde tuin, volledig rondom omheind; met borders, gazon, buitenkraan, beregeningsinstallatie, tuinverlichting en natuurstenen terrassen.

Voortuin met royale oprit t.b.v. meerdere voertuigen; aangelegd met grind; omheining en een brede elektrische dubbele poort met een bijpassend voetgangersdeurtje, beide uit het zelfde materiaal vervaardigd, wat een luxe en chique uitstraling geeft.

Absolute privacy, rust en een prachtig uitzicht op landerijen en de molen van Wouw.

Bouwaard:
Woonhuis:
traditioneel gebouwd in spouw; opgetrokken uit metselbaksteen; begane grond- en 1e verdiepingsvloer uitgevoerd in beton; 2e verdiepingsvloer uitgevoerd in hout; onderschoten kap gedekt met keramische pannen; hardhouten kozijnen met vakverdelingen en driepuntsluitingen.

Garage:
traditioneel gebouwd in spouw; metselwerk; betonnen begane grondvloer; houten verdiepingsvloer; onderschoten kap gedekt met keramische pannen.
Technische specificaties

Isolatie:
-Vloer-, spouwmuur- en dakisolatie; HR++ beglazing.
-Aanvullend: 29 zonnepanelen.
-Energielabel: A++ (geldig tot 28-05-2031).

Verwarming en warmwatervoorziening:
-Vloerverwarming op begane grond, garage en 1e verdieping als hoofdverwarming, gevoed door een bodemwarmtepomp.
-Vloerverwarming in alle vertrekken, per vertrek individueel regelbaar via zelfstandige thermostaten.
-Extra comfort: gashaard in de living.

Kenmerken

Overdracht
Vraagprijs
€ 1.165.000 k.k.
Status
beschikbaar
Aanvaarding
in overleg
Bouw
Soort woonhuis
Eengezinswoning
Soort bouw
vrijstaande woning
Bouwjaar
2008
Energieklasse
A_PP
Soort dak
mansarde dak
Slaapkamers
4
Badkamers
2
Oppervlakten en inhoud
Woonoppervlakte
231 m2
Overige inpandige ruimte
95 m2
Inhoud
1209 m3
Perceeloppervlakte
1010 m2
faciliteiten
Mechanische ventilatie
Alarminstallatie
Zonnepanelen
Natuurlijke ventilatie
Landelijk gelegen
Baerz & Co Property Brochure

Brochure

Informatie / bezichtigingsaanvraag

Video's

Foto's

Plattegronden