Society World werkt intensief samen met Baerz & Co Luxury Homes International, het trefpunt waar exclusieve huizen en veeleisende kopers samenkomen. Hieronder vindt u een geselecteerd aanbod van de meest exclusieve huizen op alle hot-spots in 20 landen rond de Middellandse zee, de Alpen, Mexico en Dubai.

VELP
Pinkenbergseweg 37 - 6881 BC
Nederland

Roy Boesveld profile image
Roy Boesveld
Makelaar / Taxateur
€1.665.000 k.k.
Woonoppervlakte
350m2
Perceeloppervlakte
1911m2
Slaapkamers
4

Omschrijving

Op een fantastische en unieke plek ligt deze zeer royale vrijstaande villa met inpandig zwembad met jetstream. Daarnaast beschikt deze woning over een grote wijnkelder, garage voor 2 auto's, 4 slaapkamers en zeer royaal woongedeelte (zitkamer, eetkamer, werkkamer en open keuken) met prachtig zicht over de fraai aangelegde zonnige tuin- met veel privacy. Deze woning beschikt over een variatie aan terrassen, borders en gazonnen, uitkijkend over een glooiende tuin. De omringende tuin, die volop privacy garandeert, heeft een glooiend gazon met volgroeide erfafscheidingen opgevuld met heesters en bomen. De statige oprit maakt het geheel af.

In alle rust en met veel privacy geniet u hier intens van de ruimte, de fantastische tuin en de prachtige architectuur van dit huis. De woning is gelegen direct aan de voet van de Posbank en aan de rand van een gezellige woonwijk, op enkele minuten afstand van het centrum van Velp met tal van voorzieningen. Ook de uitvalswegen bereikt u snel en de luchthavens Düsseldorf en Amsterdam zijn in circa een uur bereikbaar.

Woonoppervlakte: 350m2. Inhoud: 1775m3. Perceel: 1911m2.

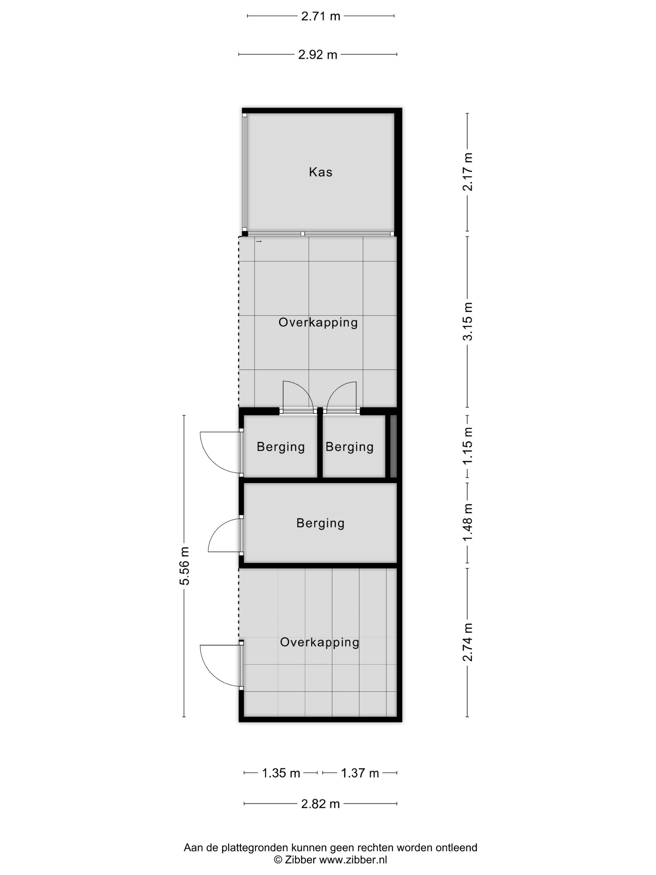
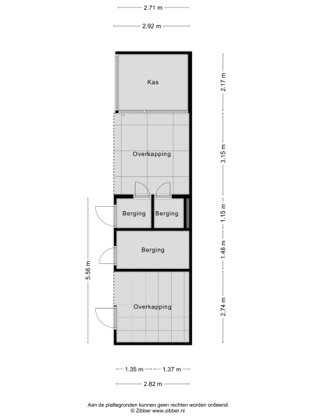
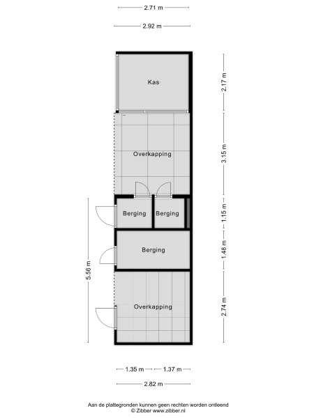
Indeling:
Souterrain:
Dit ruime souterrain beschikt over een ruime garage met plek voor 2 auto's. Verder is de garage voorzien van een elektrische deur en een laadpaal voor een elektrische auto. Daarnaast is er een prachtige wijnkelder, diverse bergruimtes, een technische ruimte met o.a de warmtepompen voor de woning en het inpandige zwembad met jetstream. Vanuit het souterrain is voor bewoners de toegang tot de woning.

Begane grond:
Via de opgang is er toegang tot de ruime entree. Vanuit de ruime hal is er toegang tot alle vertrekken op deze verdieping. Zo zijn er 4 slaapkamers, 2 badkamers en een zwembad. Het zwembad beschikt over schuifpui naar de tuin, zodat daar ook heerlijk genoten kan worden van de natuur.
De badkamers beschikken over een wastafel, douche en de royale badkamer over een extra ligbad en 2e toilet. De masterbedroom is gesitueerd aan de tuinzijde van de woning en is voorzien van veel kastruimte en airco.

Als we verder gaan op de begane grond komen we in het zeer royale woongedeelte. De zitkamer beschikt over een glazen pui over de gehele breedte, waardoor er werkelijk een fantastisch uitzicht is over de tuin. Verder is er een leefkeuken met een aangrenzende bijkeuken voorzien van een goederenlift vanuit het souterrain. De eetkamer is gesitueerd aan de tuinzijde en daartussen bevindt zich een royale werkkamer. Al deze ruimten in het woongedeelte staan in open verbinding met elkaar. Werkkamer en keuken kunnen met fraaie schuifdeuren afgescheiden worden. Het royale overdekte buitenterras grenzend aan de zitkamer is voorzien van een elektrisch schuifdak inclusief zonwering en heeft haar toegang vanuit de zitkamer middels een schuifpui.

De woning is zo bijzonder en heeft zoveel mogelijkheden dat het bijna onmogelijk is om te omschrijven. Wij nodigen u graag uit om te komen kijken en het te ervaren.
Bijzonderheden:
- Energielabel A;
- Geheel rolstoeltoegankelijk ontworpen;
- Gehele woning voorzien van vloerverwarming;
- Openhaard op gas;
- Overdekt terras met elektrisch schuifdak;
- 2 badkamers;
- 4 slaapkamers;
- Inpandig zwembad met jetstream;
- Zeer royale tuin met beregeningsinstallatie en robot gazonmaaier;
- Uniek gelegen;
- Inpandige garage voor 2 auto's met laadpaal;
- Grote wijnkelder;
- Centraal stofzuigersysteem.

Kenmerken

Zwembad
Alarm system
Overdracht
Vraagprijs
€ 1.665.000 k.k.
Status
verkocht onder voorbehoud
Aanvaarding
in overleg
Bouw
Soort woonhuis
Villa
Soort bouw
vrijstaande woning
Bouwjaar
1991
Energieklasse
A
Soort dak
zadeldak
Slaapkamers
4
Badkamers
2
Oppervlakten en inhoud
Woonoppervlakte
350 m2
Overige inpandige ruimte
130 m2
Gebouwgebonden buitenruimte
50 m2
Externe bergruimte
14 m2
Inhoud
1775 m3
Perceeloppervlakte
1911 m2
faciliteiten
Mechanische ventilatie
Alarminstallatie
Buitenzonwering
Zwembad
Lift
Rookkanaal
Schuifpui
Glasvezel kabel
Aan bosrand
Aan rustige weg
Vrij uitzicht
Beschutte ligging
In bosrijke omgeving
Baerz & Co Property Brochure

Brochure

Video’s

Plattegronden

Willemsen Makelaars

Jansplaats 29
6811 GB Arnhem

r.boesveld@willemsen.nl
+31 26 445 27 51

www.willemsen.nl

Informatie / bezichtigingsaanvraag

Roy Boesveld profile image
Roy Boesveld
Makelaar / Taxateur

Een luxe woning kopen in Velp

Velp trekt internationale kopers dankzij haar groene omgeving, rijke historie en luxe vastgoedmarkt. Bewoners waarderen hoogwaardige voorzieningen, privacy en lokaal advies in een omgeving waar traditie en moderniteit samenkomen.