Society World werkt intensief samen met Baerz & Co Luxury Homes International, het trefpunt waar exclusieve huizen en veeleisende kopers samenkomen. Hieronder vindt u een geselecteerd aanbod van de meest exclusieve huizen op alle hot-spots in 20 landen rond de Middellandse zee, de Alpen, Mexico en Dubai.

ROERMOND
Het Ham 16 - 6041 SM
Nederland

€1.695.000 k.k.
Woonoppervlakte
237m2
Perceeloppervlakte
1130m2
Slaapkamers
3

Omschrijving

Op een werkelijk unieke locatie, waar de Hambeek haar laatste sierlijke bocht maakt alvorens uit te monden in de Maas, bevindt zich deze uitzonderlijk instapklare en luxueuze villa. Dit betreft de grootste kavel in Het Ham, waarop de woning perfect is gepositioneerd. Op loopafstand van het bruisende centrum en met een eigen aanlegsteiger biedt deze villa een zeldzame combinatie van rust, privacy en directe toegang tot het water. Stap vanuit je eigen aanlegsteiger in de boot en vaar binnen enkele minuten naar de Maas en de uitgestrekte Maasplassen om te genieten van de mooie waterrijke omgeving.

Deze exclusieve watervilla onderscheidt zich niet alleen door haar fenomenale ligging, maar ook door de moderne architectuur, de lichtinval en de sublieme afwerking. De royale leefruimtes, speelse indeling en het fijne samenspel tussen binnen en buiten zorgen voor een ongeëvenaarde woonbeleving. Hier ervaar je dagelijks het comfort en de luxe die passen bij een woning in het absolute topsegment.

De woning is volledig voorbereid op de toekomst; gasloos en duurzaam gebouwd. De gehele woning is afgewerkt met een moderne, grote tegelvloer op begane grond en PVC visgraat vloer op de verdieping en voorzien van vloerverwarming én -koeling, individueel regelbaar per ruimte. De warmte wordt opgewekt middels een warmtepomp. Er zijn 33 zonnepanelen aanwezig welke zorgen voor de opwekking van elektriciteit waardoor het huis energieneutraal is.

Omdat het plaatje hier zo klopt, is er zelfs de mogelijkheid om de inventaris over te nemen. Dit maakt het verhuizen pas écht gemakkelijk.

Pak je kans, zelden op de markt beschikbaar!

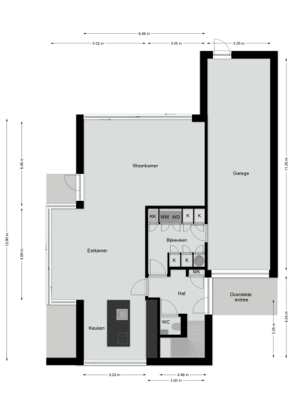
Indeling

Begane grond
Wanneer we binnenkomen in de hal treffen we de meterkast en een ruim gastentoilet voorzien van fonteintje. Vanuit de royale ontvangsthal toegang tot de verdieping, het woongedeelte en de praktische bijkeuken.

In het woongedeelte valt meteen de ruimte en de grote raampartijen op, welke zorgen voor veel natuurlijk daglicht en veel contact met de omgeving. De grote raampartijen zijn voorzien van elektrisch bedienbare gordijnen.
Er is een naadloze overgang tussen de luxe keuken met kookeiland, de eetkamer en de zitkamer. Perfect voor het ontvangen van gasten en het creëren van een gezellige sfeer. De begane grond is echt een fantastische plek om quality-time door te brengen met je gezin en vrienden. Vanuit elke hoek heb je een prachtig zicht op de tuin. En als het mooi weer is, zet je de schuifpui open en ontstaat er een mooie verbinding tussen binnen en buiten.

De luxe keuken aan de voorzijde van de woning is voorzien van Miele inbouwapparatuur, onder andere koffieautomaat, heteluchtoven, stoomoven, Bora inductiekookplaat met geïntegreerde afzuiging, vaatwasser, een wijnklimaatkast en diverse opbergkastjes en lades. Vanuit de keuken is goed zicht op de prachtig aangelegde voortuin.

De bijkeuken beschikt over een op maat gemaakte kastenwand. De opstelling is onder andere voorzien van een koelkast, kasten en wasmachineombouw op hoogte. Vanuit de bijkeuken is er toegang tot inpandig bereikbare, royale garage van circa 38 m2. Deze is compleet afgewerkt met gestucte en geschilderde wanden en plafonds, eenzelfde grote tegelvloer met vloerverwarming en -koeling. Door de grootte en afwerking is het mogelijk om naar eigen wens verder in te delen. Wil je een garage met plaats voor een of twee auto('s), een bootje of andere motorvoertuigen? Een thuis atelier? Slaapkamer en badkamer begane grond? Thuiswerkplek of speelkamer voor de kinderen? Alles is hier mogelijk!

Eerste verdieping
De eerste verdieping biedt drie ruime slaapkamers, een luxe badkamer en een separaat toilet. De slaapkamers en overloop zijn alles voorzien van eenzelfde, dorpelvrije en moderne PVC visgraatvloer. Ook op de verdieping zijn de vloeren voorzien van vloerverwarming en -koeling. Een van de slaapkamers is voorzien van een maatwerk kastenwand. De twee grootste slaapkamers bieden toegang tot een ruim dakterras met een schitterend uitzicht over het water. Een plek waar het heerlijk vertoeven is. De badkamer is voorzien van een ruime inloopdouche, ligbad, dubbele wastafel met meubel en een praktische opbergwand. Tevens is er een praktische berging met installaties aanwezig.

Tuin
Buitenleven op topniveau! De rondom gelegen tuin is onder architectuur ontworpen en aangelegd en vormt een waar verlengstuk van de woning. Hier geniet je van optimale privacy, diverse zon- en schaduwplekken en een panoramisch uitzicht over het water. Een fantastische oase!

De villa wordt aan de voorzijde omarmd door een royale voortuin die direct de toon zet voor het exclusieve karakter van de woning. De zorgvuldig ontworpen combinatie van moderne bestrating en groene perken zorgt voor een harmonieus en verzorgd geheel, waarbij strak design en natuurlijke elementen elkaar versterken. Via de eigen oprit, uitgevoerd met hoogwaardige tegels en subtiel geïntegreerd groen, bereik je de woning op stijlvolle wijze. De entree wordt geaccentueerd door een fraaie halfhoge muur, waarin een extra grote, geïntegreerde brievenbus is verwerkt. Een detail dat luxe en functionaliteit moeiteloos combineert. Het geheel wordt compleet gemaakt door een geavanceerd intercomsysteem en een elektrische toegangspoort, die niet alleen bijdragen aan het comfort, maar ook aan privacy en veiligheid. Deze representatieve entree vormt een indrukwekkend welkom voor zowel bewoners als gasten en onderstreept het hoogwaardige niveau van deze exclusieve villa.

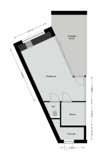
De royale zijtuin en achtertuin zijn met dezelfde kwaliteit aangelegd. Een absoluut hoogtepunt is het luxe afgewerkte poolhouse in combinatie met een eigen sauna en een zwembad. De zorgvuldig uitgekozen houten, Finse afwerking in het interieur van deze poolhouse, zorgt voor een ultiem wellness gevoel. Bij binnenkomst valt meteen de verdraaibare houtkachel op die in de ruimte aanwezig is, een échte eye-catcher. Dit exclusieve buitenverblijf (inclusief overkapping circa 55 m2) maakt het mogelijk om het hele jaar door te genieten van ontspanning en comfort in eigen tuin. Of het nu gaat om een verfrissende duik op een zomerse dag in het zwembad of een sfeervolle avond met familie en vrienden — deze buitenruimte biedt het ultieme vakantiegevoel aan huis. De poolhouse is tevens voorzien van een keukenblok met spoelbak, wijnklimaatkast, koelkast, inductiekookplaat met Bora-afzuiging en diverse opbergkasten. Ook is er een muziekinstallatie met inbouwspots aanwezig. Aan de buitenzijde is er een buitendouche met themostaatkraan aanwezig. Er is een aparte ruimte waar alle installaties opgesteld zijn.

Meerdere terrassen in de tuin nodigen uit tot lange diners, gezellige borrels of rustige momenten in de zon. De tuin is verder aangelegd met onder andere gazon, split en diverse beplantingen. Hier is een perfecte balans tussen groen en het moderne karakter van het huis. Vanuit je tuin loop je de trap omlaag naar je eigen aanlegsteiger, zodat je vanuit hier zo je boot in kunt stappen. In enkele minuten vaar je naar de Maas en de Maasplassen zodat je kan genieten van een dagje op het water.

Bijzonderheden
- Vrijstaand wonen op een unieke locatie;
- Woonoppervlakte van maar liefst 237 m2, waarvan 36 m2 poolhouse;
- Een architectonisch hoogstandje;
- Instapklaar, direct genieten!
- Geweldige woonbeleving met veel luxe en comfort;
- Eigen aanlegsteiger;
- Overname inventaris mogelijk!
- Moderne, hoog kwalitatieve materialen;
- Geheel voorzien van Philips Hue;
- Voorzien van vele extra's, zoals elektrisch bedienbare gordijnen, hoge kwaliteit alarmsysteem en rondom camera's;
- Buitenleven op topniveau met onder andere luxe poolhouse met sauna en buitenzwembad (met eigen warmtepomp);
- Volledig geïsoleerd, duurzaam en energieneutraal;
- Energielabel A+++;
- Fantastische ligging aan de Hambeek direct aan de rand van het centrum;
- Goede bereikbaarheid door de ligging aan de A73.

Omgeving
De watervilla is gelegen in de recent ontwikkelde kleinschalige nieuwbouwwijk 'Parkwijk 't Ham'. Parkwijk ’t Ham ligt in een groene hoek, waaromheen de Hambeek haar laatste grote bocht maakt alvorens uit te monden in de Maas. Je woont hier heerlijk rustig, doordat de wijk in een lus gebouwd is komt er voornamelijk bestemmingsverkeer.
Rust en ruimte zijn kenmerkend voor deze fraaie ‘groene’ woonomgeving, die slechts enkele minuten verwijderd ligt van de sfeervolle binnenstad met zijn grote rijkdom aan cultuurhistorie en een gezellig winkelhart met een grote diversiteit aan winkels. In de directe nabijheid van de woning is het heerlijk wandelen. Watersporten en natuurliefhebbers kunnen hun hart ophalen in het Maasplassengebied, dat op fietsafstand van de woning ligt en per boot direct toegankelijk is. Met zijn aaneenschakeling van kleine en grote meren, gelegen in een groen en weids landschap. Roermond beschikt over goede verbindingswegen (A2 en A73), waardoor steden als Maastricht, Venlo en Eindhoven binnen 30 minuten bereikbaar zullen zijn.

Kenmerken

Zonnepanelen
Alarm system
Overdracht
Vraagprijs
€ 1.695.000 k.k.
Status
beschikbaar
Aanvaarding
in overleg
Bouw
Soort woonhuis
Villa
Soort bouw
vrijstaande woning
Bouwjaar
2023
Energieklasse
A+++
Soort dak
plat dak
Slaapkamers
3
Badkamers
1
Oppervlakten en inhoud
Woonoppervlakte
237 m2
Overige inpandige ruimte
0 m2
Gebouwgebonden buitenruimte
22 m2
Inhoud
774 m3
Perceeloppervlakte
1130 m2
faciliteiten
Mechanische ventilatie
Alarminstallatie
Tv kabel
Buitenzonwering
Schuifpui
Glasvezel kabel
Domotica
Zonnepanelen
Balansventilatie
Aan water
Aan rustige weg
In woonwijk
Vrij uitzicht
Aan vaarwater
Baerz & Co Property Brochure

Brochure

Video’s

Plattegronden

Damen Makelaardij

Ambyerstraat-Noord 72
6225 EG Maastricht

h.vandenbergh@damen-og.nl
+31 433479090

www.damen-og.nl

Informatie / bezichtigingsaanvraag

Hellen van den Bergh – Damen profile image
Hellen van den Bergh – Damen
NVM Makelaar

Een luxe woning kopen in Roermond

Roermond biedt cultureel raffinement, internationale verbondenheid en excellente vastgoedservices. De levendige gemeenschap en het leven aan het water trekken een wereldwijde doelgroep en zorgen voor duurzame waarde en kansen voor veeleisende vastgoedeigenaars.