Society World werkt intensief samen met Baerz & Co Luxury Homes International, het trefpunt waar exclusieve huizen en veeleisende kopers samenkomen. Hieronder vindt u een geselecteerd aanbod van de meest exclusieve huizen op alle hot-spots in 20 landen rond de Middellandse zee, de Alpen, Mexico en Dubai.

NISTELRODE
Wilhelminastraat 3 - 5388 EP
Nederland

Bram Van der Wielen profile image
Bram Van der Wielen
Owner, MMCEPI register makelaar
€1.295.000 k.k.
Woonoppervlakte
304m2
Perceeloppervlakte
649m2
Slaapkamers
4

Omschrijving

Exclusieve en luxe villa in Nistelrode| Energielabel A+++

Aan de Wilhelminastraat in Nistelrode staat deze markante en recent gebouwde villa waarin luxe, ruimte en duurzaamheid samenkomen. Een hoogwaardige woning met een onderscheidende architectuur, een uitzonderlijk afwerkingsniveau en moderne energiezuinige voorzieningen. De woning is gelegen op een rustige en aantrekkelijke locatie in Nistelrode, met voorzieningen, natuur en uitvalswegen in de directe omgeving.

Dit huis is volledig voorbereid op comfortabel en energiezuinig wonen en beschikt over energielabel A+++. De woning is onder andere voorzien van een grondwarmtepomp, zonnepanelen, WTW installatie en uitstekende isolatie, wat zorgt voor lage energielasten en optimaal wooncomfort.

Kenmerken

- Royale woning met allure;
- Piekfijn afgewerkt en tot in detail verzorgd;
- Luxueuze woonkeuken in een royale setting;
- Fantastische woonkamer die afsluitbaar is van de keuken;
- Energielabel A+++ met o.a. grondwarmtepomp, zonnepanelen en HR++ beglazing;
- Vier ruime slaapkamers waarvan masterbedroom met inloopkast;
- Architectonisch aangelegde tuin met jacuzzi en overdekte buitenkeuken;
- Volledig geïsoleerd gastenverblijf met bar en toilet.

Indeling

De royale leefruimtes zijn met veel oog voor detail afgewerkt. De indrukwekkende woonkeuken vormt het hart van de woning en is uitgevoerd met luxe materialen en hoogwaardige inbouwapparatuur. Aangrenzend bevindt zich de sfeervolle en ruime woonkamer met veel lichtinval. Een kantoorruimte, de separate wasruimte en de sterke verbinding met de tuin. De begane grond is voorzien van vloerverwarming, een extreem slijtvaste en krasbestendige troffelvloer die naadloos doorloopt. Deuren met magnetische sluiting en strak afgewerkte wanden en plafonds. De keuken is voorzien van alle gemakken, met een spoel- en kookeiland is het hier heerlijk koken.

De woning beschikt over maar liefst vier comfortabele slaapkamers, allen ruim van opzet en hoogwaardig afgewerkt. De hoofdslaapkamer beschikt over een inloopkast van formaat. En de badkamer is luxe afgewerkt met ligbad, inloopdouche, wastafel met meubel en een stortkoker voor de was. De royale tweede verdieping is uitermate geschikt voor het creëren van eventueel twee extra slaapkamers.

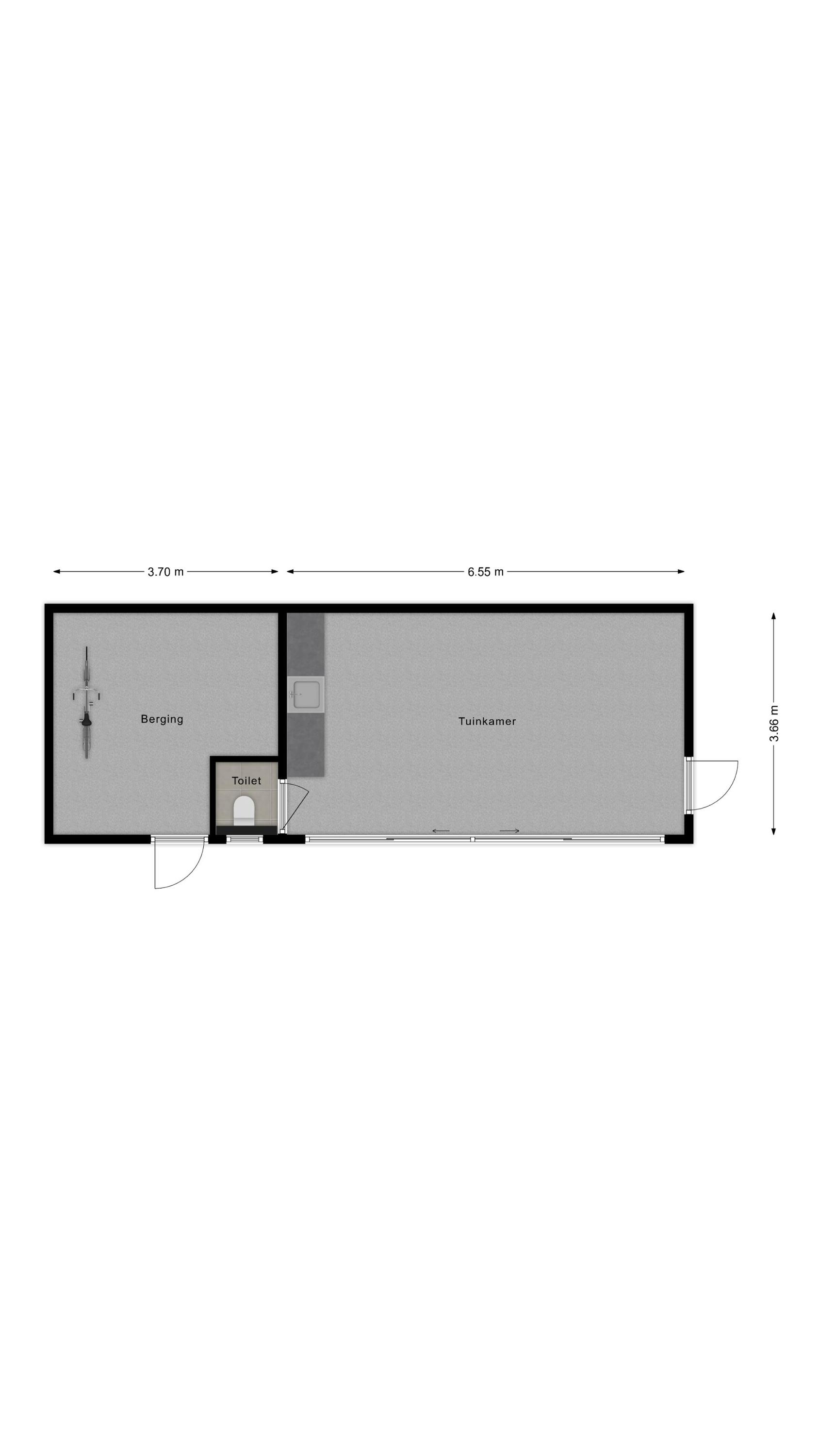
Guesthouse

In de tuin bevindt zich een volledig geïsoleerd guesthouse, voorzien van een bar en een toilet. Deze ruimte is uitermate geschikt als gastenverblijf, kantoor aan huis of ontspanningsruimte.

Tuin

De tuin is onder architectuur aangelegd en biedt volop privacy. Hier bevinden zich onder andere een jacuzzi en een overdekte buitenkeuken, waardoor het buitenleven optimaal kan worden genoten.

Ligging
Een unieke villa voor wie op zoek is naar ruimte, comfort en luxe in een duurzame setting.

Kenmerken

Zonnepanelen
Alarm system
Overdracht
Vraagprijs
€ 1.295.000 k.k.
Status
beschikbaar
Aanvaarding
in overleg
Bouw
Soort woonhuis
Villa
Soort bouw
vrijstaande woning
Bouwjaar
2019
Energieklasse
A+++
Soort dak
zadeldak
Slaapkamers
4
Badkamers
1
Oppervlakten en inhoud
Woonoppervlakte
304 m2
Overige inpandige ruimte
0 m2
Externe bergruimte
38 m2
Inhoud
1076 m3
Perceeloppervlakte
649 m2
faciliteiten
Alarminstallatie
Buitenzonwering
Jacuzzi
Glasvezel kabel
Zonnepanelen
Aan rustige weg
In woonwijk
Baerz & Co Property Brochure

Brochure

Video’s

Plattegronden

Kordaat Makelaars

Liessentstraat 9 a
5405 AH Uden

bram@kordaatmakelaars.nl
+31 623454361

www.kordaatmakelaars.nl

Informatie / bezichtigingsaanvraag

Bram Van der Wielen profile image
Bram Van der Wielen
Owner, MMCEPI register makelaar

Een luxe woning kopen in Nistelrode

Nistelrode biedt veeleisende bewoners een harmonieuze mix van luxe, privacy en gemeenschapszin. Dankzij topservice, levendige cultuur en internationale connectiviteit trekt het dorp stilletjes liefhebbers van onderscheidend en duurzaam waardevolle woonstijlen aan.