Society World werkt intensief samen met Baerz & Co Luxury Homes International, het trefpunt waar exclusieve huizen en veeleisende kopers samenkomen. Hieronder vindt u een geselecteerd aanbod van de meest exclusieve huizen op alle hot-spots in 20 landen rond de Middellandse zee, de Alpen, Mexico en Dubai.

MALDEN
Groesbeekseweg 50 - 6581 KS
Nederland

Freek van Camp profile image
Freek van Camp
Real Estate Agent
€1.295.000 k.k.
Woonoppervlakte
381m2
Perceeloppervlakte
1500m2
Slaapkamers
3

Omschrijving

Een unieke kans: een semibungalow die in 2021 onder architectuur is getransformeerd tot een energiezuinige (A+) en sfeervolle woning!

Deze woning ligt in een rustige omgeving aan de rand van Malden, direct bij het bos. Hier geniet u van privacy en groen, terwijl voorzieningen als diverse winkels, restaurants, scholen, sportfaciliteiten, zorgvoorzieningen en een sfeervolle bioscoop binnen enkele minuten bereikbaar zijn. Ook Nijmegen met de ziekenhuizen, hogeschool, universiteit en de uitvalswegen liggen op korte afstand.

Deze bungalow biedt een geweldige kans om gelijkvloers te wonen en toch te kunnen genieten van een tuin, en dat in een van de meest geliefde woonomgevingen van de regio! Naast de royale leefruimte beschikt de woning over een multifunctionele (atelier)ruimte met eigen entree, keuken en badkamer. Daarnaast is er een aangebouwde kantoorruimte aanwezig, voorzien van een keukenblok en apart toilet, wat extra mogelijkheden biedt voor hobby of praktijkruimte. Samen met de duurzame verbouwing en de prachtige zwemvijver maakt dit het geheel tot een bijzonder veelzijdige woning.

Indeling:

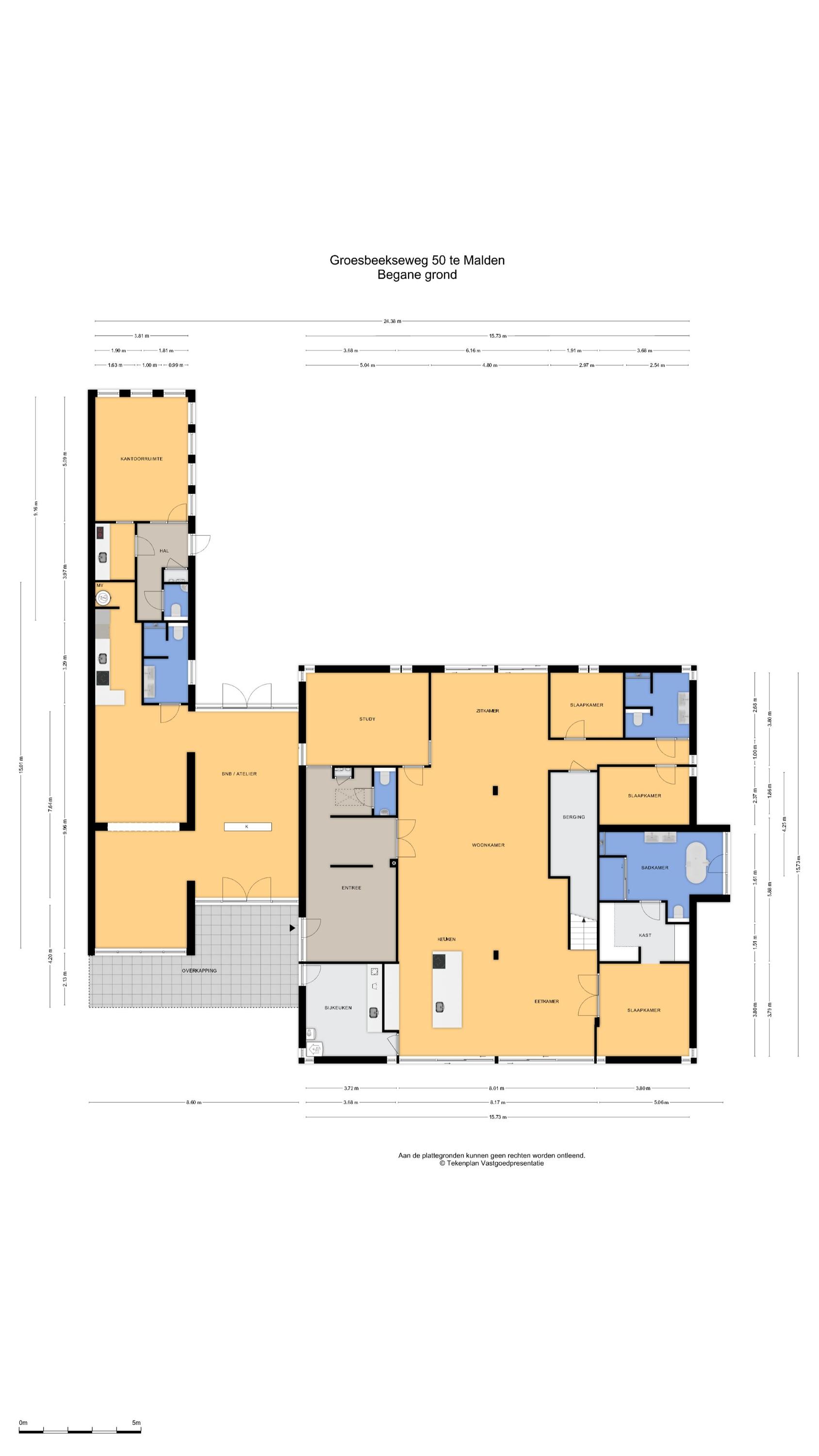
Begane grond
Entree, royale hal die gelijk het ruimtelijke karakter van de woning benadrukt. In de hal bevinden zich de meterkast, vliering en het eerste toilet met fonteintje. Een ruime woonkamer met hoge nok, waar de vele ramen aan alle zijden zorgen voor een prachtige lichtinval en een open sfeer. Zowel aan de voor- als achterzijde zijn er schuifpuien naar de voor- en achtertuin. Verder is er nog een ruime inpandige berging onder de trap en de trapopgang zelf is fraai weggewerkt. Moderne open keuken met een groot kookeiland. De hoge kasten zijn fraai weggewerkt in de muur en de keuken is voorzien van diverse luxe inbouwapparatuur. De bijkeuken is gesitueerd aan de voorzijde van de woning en heeft een keukenblok, opstelling van de warmtepomp en boiler en een extra buitendeur.

Er zijn in totaal drie slaapkamers en een multifunctionele studeerkamer op de begane grond. De studeerkamer is nu in gebruik als galerie. De masterbedroom heeft een ruime walk-in-closet en aansluitend een zeer ruime badkamer met combi sauna, vrijstaand ligbad, douche, dubbele wastafel en toilet. Hier kun je heerlijk ontspannen en tijdens het badderen genieten van de groene omgeving. Bij de andere slaapkamers is de tweede badkamer gesitueerd, welke voorzien is van een douche, dubbele wastafel en een toilet.

Vanuit de studeerkamer is de multifunctionele atelierruimte te bereiken. Deze ruimte heeft openslaande deuren aan de voor- en achterzijde met een omheind terras en beschikt over een eigen keuken en badkamer. De keuken is voorzien van diverse inbouwapparatuur en de badkamer heeft een inloopdouche, dubbele wastafel en een toilet.

Verder is er nog een aangrenzende kantoorruimte met diverse ethernetaansluitingen, welke nu in gebruik is als hobbyruimte. Deze kantoorruimte heeft een eigen toegang en oprit aan de achterzijde van het geheel. Vanuit de hal is er toegang tot de keuken en het toilet. Er is tevens een eigen meterkast.

Eerste verdieping
Fraaie vide bij de woonkamer, deze is nu in gebruik als studeerruimte. Ruime berging. Boven de entree is nog een vliering gesitueerd.

Tuin
Rondom de woning ligt een verzorgde voor, zij en achtertuin, ingericht met meerdere terrassen waardoor op elk moment van de dag een fijne plek in de zon of schaduw te vinden is. Ook is er nog een extra berging. De omheinde zwemvijver is een echte blikvanger en geeft de tuin een bijzondere uitstraling. Op eigen terrein is bovendien ruime parkeergelegenheid aanwezig.

Bijzonderheden:
- Oorspronkelijk bouwjaar 1991.
- De woning is in 2020 en in 2021 onder architectuur verbouwd en verduurzaamd.
- Woonoppervlak ca. 381 m².
- Overige inpandige ruimte ca. 22 m².
- Externe bergruimte ca. 6 m².
- Inhoud ca. 1.719 m³.
- Perceeloppervlak ca. 1.500 m².
- Definitief energielabel A+, geldig tot 02-09-2035.
- De zwemvijver is in 2023 aangelegd.
- Combi sauna met zowel infrarood als Finse sauna.
- Het pannendak is vervangen in 2025.
- De woning is voorzien van een warmtepomp (voor verwarmen en koelen), WTW en een elektrische boiler.
- De aanbouw is voorzien van airconditioning.
- De woning is voorzien van 25 zonnepanelen.
- De gehele benedenverdieping is voorzien van vloerverwarming.
- Er is een laadpaal, deze is ter overname.

Kenmerken

Zonnepanelen
Overdracht
Vraagprijs
€ 1.295.000 k.k.
Status
beschikbaar
Aanvaarding
in overleg
Bouw
Soort woonhuis
Bungalow
Soort bouw
vrijstaande woning
Bouwjaar
1991
Energieklasse
A+
Soort dak
samengesteld dak
Slaapkamers
3
Badkamers
3
Oppervlakten en inhoud
Woonoppervlakte
381 m2
Overige inpandige ruimte
22 m2
Externe bergruimte
6 m2
Inhoud
1719 m3
Perceeloppervlakte
1500 m2
faciliteiten
Mechanische ventilatie
Tv kabel
Schuifpui
Sauna
Zonnepanelen
Balansventilatie
Aan bosrand
Vrij uitzicht
In bosrijke omgeving
Baerz & Co Property Brochure

Brochure

Video’s

Plattegronden

Verbeek Makelaars

Mariaplein 6
6522 AV Nijmegen

f.van.camp@verbeek-makelaars.nl
+31 24 22 00 111

www.verbeek-makelaars.nl

Informatie / bezichtigingsaanvraag

Freek van Camp profile image
Freek van Camp
Real Estate Agent

Een luxe woning kopen in Malden

Malden biedt geraffineerd wonen, een warme dorpssfeer, uitstekende bereikbaarheid en zorgvuldig geselecteerde voorzieningen. Voor wie privacy, natuur en een kosmopolitisch perspectief zoekt—het toonbeeld van discrete luxe.