Society World werkt intensief samen met Baerz & Co Luxury Homes International, het trefpunt waar exclusieve huizen en veeleisende kopers samenkomen. Hieronder vindt u een geselecteerd aanbod van de meest exclusieve huizen op alle hot-spots in 20 landen rond de Middellandse zee, de Alpen, Mexico en Dubai.

Landhuis te koop in HELMOND

HELMOND Kaldersedijk 8 - 5706 KD Nederland


Dirk van Santvoort profile image
Dirk van Santvoort
Real Estate Agent
+31 492 52 5552
dirk@vansantvoort.nl

Van Santvoort Makelaars
Torenallee 65
5617 BB Eindhoven
NETHERLANDS
+31 40 269 25 30
www.vansantvoort.nl
info@eindhoven.vansantvoort.nl

Woonoppervlakte
379m2
Perceeloppervlakte
4775m2
Slaapkamers
6

Omschrijving

Ontdek dit unieke vrijstaande woonhuis dat volop kansen biedt dankzij de slimme indeling met een voor- en achterhuis. Dit bijzondere object is bij uitstek geschikt voor diverse woon- en werkconcepten: combineer het bijvoorbeeld als een
hoofdwoning met een zelfstandige mantelzorgwoning, creëer een comfortabele leefruimte voor samengestelde gezinnen of richt een inspirerende kantoor- of praktijkruimte aan huis in.

De aparte ingangen geven u de flexibiliteit om de ruimtes naar eigen wensen en behoeften in te delen. Of u nu op zoek bent naar een ideale combinatie van wonen en werken, het houden van hobbydieren, zoals kippen, geiten of pony's ,of behoefte hebt aan een woning die met uw levensstijl meegroeit – dit object biedt u de ruimte om al uw ideeën werkelijkheid te maken.

Perfect gelegen tussen Brandevoort en Mierlo, in een rustige omgeving met toch alle voorzieningen in de nabije omgeving. Dankzij de uitstekende verbindingen naar grote steden zoals Helmond en Eindhoven en de nabijheid van het openbaar vervoer – en zelfs de snelfietsroutes naar Eindhoven – geniet u van optimale bereikbaarheid en mobiliteit.

Laat u verrassen door de mogelijkheden en ervaar zelf hoe dit veelzijdige woonhuis, gelegen op een perfecte locatie de ideale basis kan vormen voor uw nieuwe toekomst. Neem vandaag nog contact met ons op voor een bezichtiging en ontdek de potentie van dit bijzondere pand!

WOONGEDEELTE VOORHUIS
Begane grond
De ontvangsthal biedt toegang tot de woonkamer en de meterkast. Er is ook een garderobenis aanwezig. Een zeer
fraaie natuurstenen trap zorgt voor toegang tot de 1e verdieping. Een karakteristieke deur met een glas-in-lood
raampartij biedt toegang tot de woonkamer. De woonkamer is voorzien van een marmeren tegelvloer met vloerverwarming, stucwerk wanden en een stucwerk plafond met sierlijsten. Dankzij de vele raampartijen en een grote erker geniet de ruimte van volop natuurlijk licht, wat een ruimtelijk effect creëert. Aan de woonkamer grenst een veelzijdige ruimte, ideaal voor bijvoorbeeld een inspirerende werkplek of een knusse speelplek. De ruimte kan worden afgesloten met een schuifdeur met glas-in-lood. De leefkeuken beschikt over een inrichting in een hoekopstelling en is verder uitgerust met een 5-pits gaskookplaat, combimagnetron/oven, spoelbak, een Amerikaanse koelkast en een vaatwasser. Diverse onder-en bovenkastjes zorgen voor opbergruimte. Er is voldoende ruimte voor het plaatsen van een eettafel. De keuken is afgewerkt met een tegelvloer met bies. De wanden zijn deels afgewerkt met strak stucwerk en deels met houten lambrisering. Het plafond is voorzien van stucwerk met sierlijsten. De leefkeuken staat in open verbinding met de aangrenzende tuinkamer. Ook hier zorgen grote raampartijen voor een zee van licht en een prachtig zicht op de rondom gelegen tuin. Een heerlijke plek om te ontspannen! De wanden zijn deels afgewerkt met strak stucwerk en deels met houten lambrisering. Het plafond is eveneens voorzien van stucwerk met sierlijsten. Via openslaande deuren is er toegang tot de tuin. Ook is er vanuit hier toegang tot de bijkeuken. De bijkeuken is een praktische ruimte, welke is uitgerust met een gootsteen, een bergkast en een vaste kastenwand met schuifdeuren. Ook is er een toiletruimte aanwezig. Een loopdeur zorgt voor toegang tot de tuin. Tevens kun je vanuit deze ruimte het achterhuis bereiken.

1e verdieping
De ruime overloop biedt toegang tot 3 slaapkamers en een badkamer. De overloop en alle slaapkamers hebben
dezelfde afwerking: een laminaatvloer, stucwerk wanden en een stucwerk plafond. De slaapkamer aan de rechterzijde gelegen is uitgerust met openslaande deuren, die toegang bieden tot het plat dak. Vanuit hier heb je een prachtig uitzicht op de tuin. De grootste slaapkamer is thans ingericht als hobbyruimte en beschikt over een inloopkast, berging en een CV-
ruimte waar de opstelling voor de CV-ketel is gesitueerd. Diverse dakvensters en twee dakkapellen zorgen voor veel natuurlijke lichtinval.

WOONGEDEELTE ACHTERHUIS
Begane grond:
De ruime entreehal met hoogwaardige keramische tegelvloer voorzien van vloerverwarming, biedt toegang tot
de woonkamer, toiletruimte en de meterkast. Een kersenhouten trap zorgt voor toegang tot de 1e verdieping.
De toiletruimte is geheel betegeld en uitgerust met een fonteintje en zwevend toilet. De sfeervolle woonkamer wordt geaccentueerd door een hoogwaardige keramische tegelvloer met bies en stucwerk, zowel op de wanden als op het plafond. De fraaie sierlijsten geven het interieur een klassieke uitstraling. De marmeren schouw met gashaard zorgt in de koudere dagen voor extra warmte en sfeer. Een ruime erker, momenteel ingericht als werkplek zorgt voor extra lichtinval in de ruimte. De op maat gemaakte keuken is ontworpen door Hans Kwinten Interieursprojecten. Deze hoogwaardige keukeninrichting is in een L-vorm geplaatst en volledig uitgerust met een geavanceerde kookplaat (voorzien van een wokbrander, twee gaspitten en twee inductiepitten) en een combioven die tevens dienst doet als stoomoven en magnetron. Daarnaast vindt u er een vaatwasser, vriezer, koelkast en een Quooker-kokend waterkraan. Openslaande deuren en diverse raampartijen zorgen voor een fraai uitzicht op de tuin en een directe verbinding naar het overdekte terras en de tuin. Vanuit de keuken is er toegang tot een ruime manshoge voorraadkelder. De slaapkamer met badkamer-en-suite en inloopkast is een heerlijke ruimte. De vloer is afgewerkt met laminaat. De badkamer is geheel betegeld en uitgerust met een Whirlpool ligbad met lichttherapie, een dubbele wastafel met een meubel, een zwevend toilet en een inloopdouche met zitje. Diverse nisjes zijn een extra fraai detail in de ruimte. Ook is er vloerverwarming in de badkamer aanwezig. De inloopkast met vaste kastenwand en verlichting biedt mogelijkheden voor optimale kledingopslag. Vanuit de
inloopkast is er directe toegang tot de wasruimte. Deze wasruimte is uitgerust met de aansluitingen voor de wasapparatuur en een kitchenette. Een afsluitbare loopdeur zorgt vanuit hier voor de verbinding met het voorhuis.

1e Verdieping:
Vanaf de overloop heeft u toegang tot twee comfortabele slaapkamers, die zijn afgewerkt met een laminaatvloer stucwerk wanden en plafonds. Een dakkapel en 2 raampartijen zorgen voor natuurlijke lichtinval en ventilatie. De tweede badkamer is eveneens geheel betegeld en voorzien van een inloopdouche, een wastafel en een zwevend toilet. Een dakraam zorgt voor voldoende natuurlijke lichtinval en frisse lucht. De praktische CV-ruimte/berging beschikt over de opstelling voor de CV-ketel (Nefit, Topline).

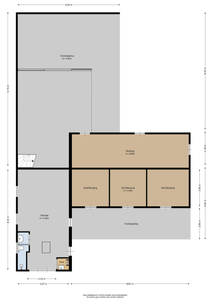
BIJGEBOUWEN
Bijgebouw/garage
Het bijgebouw is opgetrokken uit metselwerk en het dak is geïsoleerd met dakpannen gedekt. Openslaande deuren in de voorgevel bieden vanuit de tuin toegang tot een prettige ruimte die is afgewerkt met een tegelvloer, stucwerk wanden en een schuurwerk plafond met inbouwverlichting. Deze ruimte kan uitstekend dienst doen als hobby- of chillruimte. Daarnaast beschikt het bijgebouw ook over een eigen c.v.-ketel en doucheruimte, welke is uitgerust met een inloopdouche, toilet en vaste wastafel. Een vlizotrap biedt toegang tot de bergzolder. De ruimte is momenteel in gebruik als hobbyruimte, maar is uiteraard ook zeer geschikt voor diverse andere doeleinden. Aan de rechterzijde van het gebouw zijn 3 voormalige) paardenboxen gesitueerd. Deze boxen zijn voorzien van deelbare deuren met een overstek aan de voorzijde. De boxen zijn momenteel in gebruik als opslagruimtes. In één van de boxen is de omvormer voor de zonnepanelen gesitueerd. Er is een gootsteen aanwezig. De overstek aan de voorzijde is ruim opgezet en kan uitstekend dienst doen als overdekt terras, een heerlijke ruimte om te zitten. Aan de achterzijde is een afhang gesitueerd met houten wanden en een golfplaten dak. Deze
ruimte is ingericht als schuur-/bergruimte.

Veldschuur
Aan de achterzijde van de garage is de veldschuur met open front gelegen. De voormalige hooizolder, bereikbaar via een stevige vaste trap, zorgt voor extra opslagmogelijkheden. De veldschuur is zeer geschikt als carport, ook voor een camper, caravan of paardentrailer.

Paardenstal
De vrijstaande buitenstal is uitgerust met 2 paardenboxen, welke worden gescheiden door een opslag/stallingsruimte met open front. De stal is opgetrokken uit hout met een betonnen vloer en een geïsoleerd dak. De boxen hebben deelbare deuren en zijn nu in gebruik als extra opslagruimte. Verderop op het perceel was voorheen een stapmolen gesitueerd geweest. Het fundament van beton is nog aanwezig.

TUIN
Een zeer royale, prachtig aangelegde tuin met een overdekt terras aan de achtergevel en een charmant terras aan de voorzijde; perfect om te genieten van zowel de zon als de schaduw. Het parkachtige geheel is verder ingericht met paden van gebakken klinkers, een sierlijke beukenhaag en een imposant, glooiend gazon. De grote waterpartij met een fraai vlonderterras en een natuurlijke Wadi verder op het perceel zorgen voor een bijzondere harmonie tussen water, natuur en architectuur. De tuin biedt bovendien een variëteit aan fruit- en notenbomen en frambozenstruiken, welke een rijk dierenleven en vogels aantrekken. In het voorste deel van de tuin is het “schrijvershuisje” te vinden. Dit unieke huisje is opgetrokken uit hout met een pannen dak en een vinyl vloer. Om het huisje heen is een vlonderterras aangelegd. Dit leuke huisje is geschikt voor diverse doeleinden: speelhuisje voor kinderen, werkruimte of hobbyruimte. De praktische indeling, met een eigen achterom aan beide zijdes van de woning, garandeert optimale bereikbaarheid en privacy.

BIJZONDERHEDEN
- Het geheel is aangesloten op gas, water, elektra, riolering en glasvezel.
- Op het dak van het bijgebouw zijn 28 zonnepanelen gesitueerd (2017).
- De woning is grotendeels voorzien van vloerverwarming.
- Het voorhuis is in 2001 gebouwd, het achterhuis in 2009.
- Het object beschikt over een eigen achterom aan beide zijdes van de woning.
- De woning bestaat uit 2 woongedeelten waardoor het volop mogelijkheden biedt voor bijvoorbeeld een
mantelzorgwoning, samengestelde gezinnen, kantoor/praktijk aan huis of een guesthouse.
- Gelegen op een fraai, royaal perceel van ca. 4.775 m².
- Een perfecte, rustige locatie tussen Brandevoort en Mierlo met alle voorzieningen en uitvalswegen in de directe
omgeving.

Kenmerken

Overdracht
Vraagprijs
€ 1.425.000 k.k.
Status
beschikbaar
Aanvaarding
in overleg
Bouw
Soort woonhuis
Landhuis
Soort bouw
vrijstaande woning
Bouwjaar
2001
Energieklasse
A
Soort dak
samengesteld dak
Slaapkamers
6
Badkamers
3
Oppervlakten en inhoud
Woonoppervlakte
379 m2
Overige inpandige ruimte
8 m2
Gebouwgebonden buitenruimte
38 m2
Externe bergruimte
157 m2
Inhoud
1337 m3
Perceeloppervlakte
4775 m2
faciliteiten
Dakraam
Glasvezel kabel
Zonnepanelen
Natuurlijke ventilatie
Aan rustige weg
Baerz & Co Property Brochure

Brochure

Informatie / bezichtigingsaanvraag

Video's

Foto's

Plattegronden