Society World werkt intensief samen met Baerz & Co Luxury Homes International, het trefpunt waar exclusieve huizen en veeleisende kopers samenkomen. Hieronder vindt u een geselecteerd aanbod van de meest exclusieve huizen op alle hot-spots in 20 landen rond de Middellandse zee, de Alpen, Mexico en Dubai.

HAAFTEN
Steenweg 2 - 4175 AD
Nederland

Jeanette van Haaften profile image
Jeanette van Haaften
Real Estate Agent
€1.500.000 k.k.
Woonoppervlakte
437m2
Perceeloppervlakte
1930m2
Slaapkamers
6

Omschrijving

Rust, ruimte en comfort komen samen in deze onder architectuur verbouwde T-boerderij met A++ label, garage voor meerdere auto’s en een volwassen, zonnige tuin met veel privacy. De woonboerderij leent zich door de lay-out uitstekend om wonen en werken te combineren danwel als meergeneratiewoning.

Hal, imposante tuingerichte woonkamer, eetkeuken, slaapkamer met aangrenzende badkamer, twee werk-/slaapkamers, een 2e badkamer, bijkeuken en tweede hal met toegang tot het terras onder de Gelderse overstek op de begane grond.
Een 2e woonkamer annex atelierruimte, bibliotheekkamer en een slaapkamer met aangrenzende 3e badkamer in het voorhuis en twee slaapkamers in het achterhuis op de eerste verdieping.

Haaften (gemeente West Betuwe) ligt in de Tielerwaard aan de rivier de Waal. Het rustige dorpje ligt op 15 autominuten van ’s-Hertogenbosch en op 30 autominuten van Utrecht. Het dorp biedt een complete middenstand voor de dagelijkse boodschappen, een tennis- en een voetbalvereniging, een ijsbaan en een multifunctioneel centrum met openbare bibliotheek, peuterspeelzaal en twee basisscholen. Haaften is een geliefd dorp met een niet beklemmende sociale cohesie, waar inmiddels ook vele Randstedelingen zijn neergestreken. Het dorp ligt in de kom van de Waalbandijk aan de noordoever van de rivier de Waal. Vanaf de woonboerderij loopt een wandelpad naar deze Waalbandijk. Vanaf daar is het enkele minuten wandelen naar De Crobsche Waard, een 77 hectare groot, voor publiek opengesteld natuurgebied dat bestaat uit een afwisseling van plassen, moerasbossen en vochtige landbouwgronden.
De omgeving is populair bij wandelaars en fietsers vanwege de mooie landelijke routes en de nabijheid van de rivier. Voor meer uitgebreide faciliteiten en voorzieningen kunnen inwoners gebruikmaken van nabijgelegen plaatsen zoals Geldermalsen, Tiel of Zaltbommel.

Bruto-inhoud woning: ca. 1.700 m³
Gebruiksoppervlakte wonen: 437 m²
Perceeloppervlak: 1.930 m²
Bouwperiode: eind 19e eeuw

Indeling begane grond:
Via de elektrisch op afstand bedienbare poort is de woonboerderij te bereiken. Op eigen terrein is voldoende ruimte voor het parkeren van meerdere auto’s.
De oorspronkelijke voordeur bevindt zich centraal in het voorhuis maar deze wordt niet meer gebruikt. De dagelijkse entree is aan de opritzijde. De entree is ruim en ingericht met vaste kasten en een wc. Vanuit de aangrenzende gang is toegang tot de woonkamer. Deze zonnige ruimte met vele roederamen, geflankeerd door binnenluiken, ademt -met het bijna drie meter hoge balkenplafond- een aangename sfeer. Naast de luxe keramische vloer met vloerverwarming is er een natuurstenen schouw met een open gashaard. In de woonkamer zijn twee doorgangen die zicht bieden op de aangrenzende eetkeuken. Deze ruimte biedt via dubbele openslaande deuren toegang tot het terras op het zuiden. Drie volwassen Platanen fungeren er in de zomer als natuurlijke parasol.
De keuken is ingericht met een luxe kookeiland met eetbar, een granieten werkblad en hoogwaardige, recent vernieuwde inbouwapparatuur.
Aan een centrale gang die het achterhuis in tweeën deelt, zijn aan het einde twee openslaande deuren die uitkomen onder de Gelderse overstek. Het beschut gelegen terras is de favoriete plek om de dag in de ochtendzon te starten.
Aan de noordzijde van de gang is de ouderslaapkamer met dubbele terrasdeuren, garderobekasten en een aangrenzende badkamer. Deze badkamer is ingericht met een groot hoekbad, inloopdouche, twee wastafels, toilet en bidet. Aan de zuidzijde van de gang zijn twee slaap-/werkkamers en een bijkeuken. In het achterhuis is verder nog een 2e badkamer met douche, wastafel en de witgoedaansluitingen.

Indeling eerste verdieping:
Deze verdieping kent twee opgangen. In het voorhuis komt de trap uit in een prachtige, lichte ruimte die is ingericht als bibliotheek.
De dakvensters zorgen voor een zee aan licht. Aan de bibliotheek grenst een tweede woonkamer, atelier, tv-kamer; zomaar een paar functies die u aan die 60m2 zou kunnen toekennen. Aan de andere kant van de bibliotheek is nog een slaapkamer met aangrenzende 3e badkamer. Deze is ingericht met een grote douche, wastafel en het
4e toilet.
Vanuit de centrale gang in het achterhuis leidt een trap naar de verdieping. Onder de geïsoleerde kap liggen nog twee prachtige slaapkamers. Via drie dakvensters is zicht op de tuin en de omgeving. Beide kamers zijn heerlijk licht en beschikken over een zee aan bergruimte.

Bijzonderheden:
Deze sfeervolle en instapklare T-boerderij staat op een heerlijk rustige locatie, aan een autoluw en doodlopend straatje. Via een wandelpad is de Waalbandijk toegankelijk. De locatie vormt een uitstekende uitvalsbasis voor een wandeling met de hond, een struintocht door de uiterwaarden of met de (race)fiets richting Gorinchem of Nijmegen. De autosnelweg A2 is met de auto binnen 6 minuten bereikbaar.
De bereikbaarheid is uitstekend, want Utrecht is in 30 minuten bereikbaar en Eindhoven Airport in 40 minuten. De woonboerderij is niet alleen goed onderhouden, maar bovenal comfortabel. Alle hardhouten ramen zijn voorzien van HR-beglazing, gevels en vloeren zijn geïsoleerd en op de geïsoleerde kap liggen maar liefst 46 zonnepanelen. Tezamen met de Nefit warmtepomp en 2 HR-ketels zorgt dit, in combinatie met vloerverwarming op de gehele begane grond, voor duurzaam comfort. De woonboerderij staat ook garant voor veilig wonen en is voorzien van inbraakwerend hang- en sluitwerk en een uitgebreide alarminstallatie met doormelding.
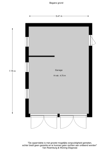
De dubbele geïsoleerde garage van 42m2 biedt ruimte aan meerdere auto’s en beschikt over een vliering en elektra.
De onderhoudsvriendelijke tuin is ingericht met grote terrassen op het zuiden en oosten, een groot gazon met volwassen (fruit)bomen, hagen en bloeiende bodembedekkers. Langs de boerderij zijn grote borders met weelderig witbloeiende ‘Annabellen’.
Als u op zoek bent naar een heerlijk familiehuis om een nieuwe start te maken in een prettige woonomgeving, maak dan een afspraak voor een bezichtiging.

Kenmerken

Zonnepanelen
Alarm system
Overdracht
Vraagprijs
€ 1.500.000 k.k.
Status
beschikbaar
Aanvaarding
in overleg
Bouw
Soort woonhuis
Woonboerderij
Soort bouw
vrijstaande woning
Bouwjaar
2002
Energieklasse
A++
Soort dak
samengesteld dak
Slaapkamers
6
Badkamers
3
Oppervlakten en inhoud
Woonoppervlakte
437 m2
Overige inpandige ruimte
55 m2
Gebouwgebonden buitenruimte
29 m2
Inhoud
1700 m3
Perceeloppervlakte
1930 m2
faciliteiten
Mechanische ventilatie
Alarminstallatie
Rookkanaal
Dakraam
Glasvezel kabel
Zonnepanelen
Natuurlijke ventilatie
Aan rustige weg
Beschutte ligging
Baerz & Co Property Brochure

Brochure

Video’s

360 Panorama’s

360°
360 Panorama - Steenweg 2
360°
360 Panorama - Steenweg 2
360°
360 Panorama - Steenweg 2
360°
360 Panorama - Steenweg 2
360°
360 Panorama - Steenweg 2
360°
360 Panorama - Steenweg 2
360°
360 Panorama - Steenweg 2

Plattegronden

Bijzonder Wonen Makelaardij

Heilige Geeststraat, 11
5301CP Zaltbommel

info@bijzonderwonen.com
+31 41 868 00 50

www.bijzonderwonen.com

Informatie / bezichtigingsaanvraag

Jeanette van Haaften profile image
Jeanette van Haaften
Real Estate Agent

Een luxe woning kopen in Haaften

Haaften combineert verfijnd wonen aan het water, een hechte gemeenschap en ingetogen architectonische klasse. Bewoners profiteren van maatwerkservice, een veilige leefomgeving en moeiteloze toegang tot het rijke Nederlandse cultuuraanbod.