Society World werkt intensief samen met Baerz & Co Luxury Homes International, het trefpunt waar exclusieve huizen en veeleisende kopers samenkomen. Hieronder vindt u een geselecteerd aanbod van de meest exclusieve huizen op alle hot-spots in 20 landen rond de Middellandse zee, de Alpen, Mexico en Dubai.

Grachtenpand te koop in DELFT

DELFT Oude Delft 32 - 2611 CC Nederland


Jan Paul van Daal profile image
Jan Paul van Daal
Real Estate Agent
+31 (0)15 - 212 73 00
janpaul@vandaalmakelaardij.nl

Van Daal Makelaardij

Woonoppervlakte
226m2
Perceeloppervlakte
223m2
Slaapkamers
5

Omschrijving

Uniek, recent prachtig gerenoveerd 19e eeuws grachtenpand met een heerlijke tuin en achterom aan de Oude Delft

Schitterend is de rijk gedecoreerde gevel met prachtige raampartij. Het pand is superlicht en heeft een oppervlakte van maar liefst 220 m² verdeeld over drie etages.

Je woont hier op een prachtige locatie. Op steenworp afstand bevinden zich winkels, gezellige cafés en restaurants en in de nabijheid zijn tevens diverse uitgaansgelegenheden zoals het theater, bioscoop en filmhuis.

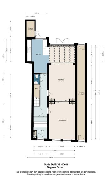
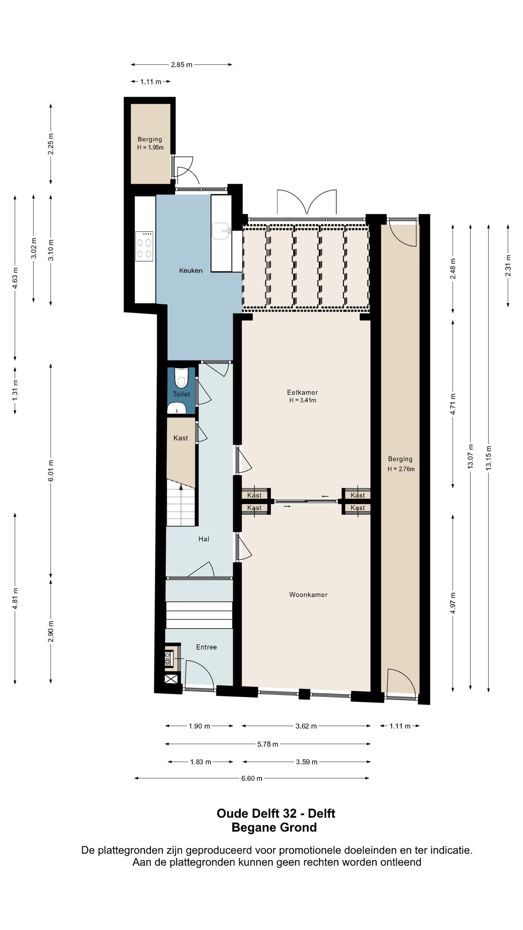
De indeling is als volgt:

Begane grond:
Binnenkomst in de vestibule, een marmeren trap naar de gang. In de hal is een kelderkast en een moderne toiletruimte. Vanuit de hal is er toegang tot de open keuken en de woonkamer. De woonkamer is stijlvol met hoge plafonds met sierlijsten, ingebouwde en-suite kasten en prachtige schuifdeuren naar de eetkamer. De eetkamer is heel bijzonder door de prachtige uitbouw aan de achterzijde met een schitterende lichtinval, en de hoge raampartij met roedeverdeling. De keuken heeft een semi-kookeiland waarvan je contact hebt met de kamer en vanaf de keuken prachtig uitzicht over de tuin. De keuken is modern afgewerkt met een marmeren blad en heeft diverse inbouwapparatuur.
Vanuit de keuken en via openslaande deuren in de eetkamer is er toegang tot de extra brede en 12 meter diepe, ommuurde achtertuin. Tot in de avond is er altijd wel een plekje in de zon of de schaduw.
Tuinbergkast en deur naar het overdekte, zeer praktische achterom met een deur aan de Oude Delft.

Eerste etage:
Brede overloop met ingebouwde kast en toegang tot de riante kamer aan de voorzijde met sfeervolle open haard met fraaie schouw en houten vloer. Vanuit de drie hoge ramen heeft u prachtig uitzicht over de Oude Delft. Deze kamer is nu in gebruik als tweede woonkamer, maar kan ook een heerlijke werkkamer, speelkamer of slaapkamer zijn.
Aan de achterzijde bevindt zich een grote slaapkamer die ideaal is voor ouderslaapkamer. Op deze etage prachtige 3-meter hoge plafonds. Badkamer met douche, ligbad, dubbele wastafel en toilet.

Tweede etage:
Trap naar de tweede volledige etage met twee slaapkamers aan de achterzijde, beide met een eigen wastafel en een grote open zolder met een hoogte van ruim 3 meter. Deze zolderkamer met zicht op de robuuste spanten is goed in te delen in bijvoorbeeld een slaapkamer en een waskamer. Hier zijn ook de aansluitingen voor de wasmachine en de droger en de opstelplaats van de CV-ketel plus boiler. Moderne toiletruimte. Moderne badkamer met royale inloopdouche, designradiator, design toiletkast en dakvenster.

op de overloop bevindt zich de vlizotrap naar de zolderetage, waar een ruime bergzolder is met stahoogte.

Bijzonderheden/Kenmerken:
- Gemeentelijk monument;
- Ligging binnen het beschermde stadsgezicht;
- Het huis is in 1884 gebouwd en in 2022 tot nu gerenoveerd;
- woonoppervlakte bedraagt 226 m2;
- Inhoud 1004 m3;
- Perceelgrootte 201 m2.
- Parkeren voor parkeervergunninghouders;

Oplevering in overleg.

Huis kopen? Neem je eigen NVM Aankoopmakelaar mee!
Een NVM Aankoopmakelaar bespaart je tijd, geld en zorgen.

Kenmerken

Overdracht
Vraagprijs
€ 1.895.000 k.k.
Status
beschikbaar
Aanvaarding
in overleg
Bouw
Soort woonhuis
Grachtenpand
Soort bouw
tussenwoning
Bouwjaar
1884
Soort dak
zadeldak
Slaapkamers
5
Badkamers
2
Oppervlakten en inhoud
Woonoppervlakte
226 m2
Overige inpandige ruimte
25 m2
Inhoud
1004 m3
Perceeloppervlakte
223 m2
faciliteiten
Aan water
Aan rustige weg
In centrum
Baerz & Co Property Brochure

Brochure

Informatie / bezichtigingsaanvraag

Video's

Foto's

Plattegronden