Society World werkt intensief samen met Baerz & Co Luxury Homes International, het trefpunt waar exclusieve huizen en veeleisende kopers samenkomen. Hieronder vindt u een geselecteerd aanbod van de meest exclusieve huizen op alle hot-spots in 20 landen rond de Middellandse zee, de Alpen, Mexico en Dubai.

Villa te koop in BERGSCHENHOEK

BERGSCHENHOEK Oltmansstraat 17 - 2662 AA Nederland


Dominique Blom profile image
Dominique Blom
Real Estate Agent
+31 107850833
dominique@dbmakelaars.nl

DB Makelaars
Dorpsstraat 79
2661 CE Bergschenhoek
NETHERLANDS
+31 107850833
www.dbmakelaars.nl
info@dbmakelaars.nl

Woonoppervlakte
174m2
Perceeloppervlakte
635m2
Slaapkamers
4

Omschrijving

Deze schitterende geschakelde hoek woning kenmerkt zich door een royale inhoud en een heerlijk lichte en zonnige woonkamer. De woning is voorzien van een garage, parkeergelegenheid voor drie auto’s op eigen terrein en een zonnige achtertuin, welke grenst aan een singel en is gelegen op het westen.

De woning is rustig gelegen in een autoluw hofje met uitsluitend bestemmingsverkeer. Op loopafstand vind je diverse basisscholen, kinderdagverblijven, park ‘De Leeuwenkuil’ en het gezellige centrum van Bergschenhoek met een diversiteit aan winkels, supermarkten en restaurants. Op korte fietsafstand bevinden zich diverse sport- en recreatievoorzieningen, zoals zwembad De Windas, het Annie M.G. Schmidtpark en Natuurspeelplaats Tuin van Floddertje, maar ook het centrum van Berkel en Rodenrijs. Daarnaast zorgt ook de gunstige ligging ten opzichte van het openbaar vervoer (bus en metrostation Rodenrijs) en de uitvalswegen (N209, N471, A12, A13 en A20) ervoor dat de grote steden gemakkelijk te bereiken zijn.

Omschrijving

Ruime voortuin, waar 3 auto's geparkeerd kunnen worden en toegang tot de garage.

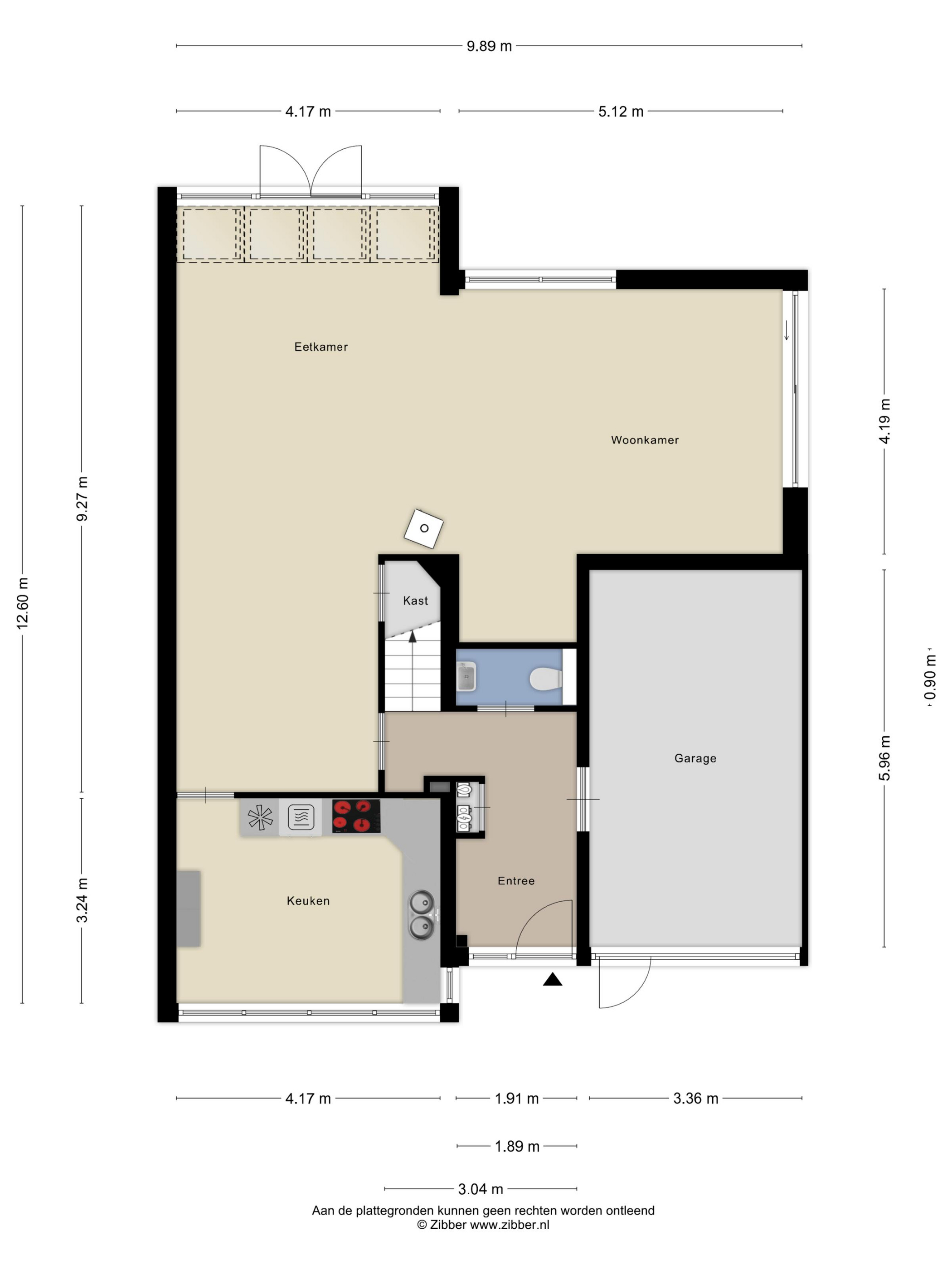
Begane grond:
Hal/entree met toilet, meterkast, trapopgang naar de 1e verdieping, toegang tot de garage en de woonkamer.

Ruime en lichte living welke is voorzien van een schitterende plavuizen vloer met vloerverwarming. Twee openslaande tuindeuren en een schuifpui met toegang tot de heerlijke achtertuin.

De recent gerenoveerde keuken in L-opstelling is voorzien van diverse inbouwapparatuur zoals een: vaatwasser, inductie kookplaat, afzuigkap, dubbele spoelbak met mengkraan, oven en een koelvries combinatie. Ook is er een screen aanwezig.

Tuin:
De verzorgde achtertuin is gelegen op het westen. De tuin beschikt over diverse terrassen met veel privacy, een sfeervolle overkapping en een vlonder met schitterend vrij uitzicht op de achtergelegen singel.

1e verdieping:
Ruime overloop voorzien van een separaat toilet, 2 slaapkamers en de badkamer.

Slaapkamer 1 (ca. 3.25 x 4.17m) gelegen aan de voorzijde en voorzien van een Frans balkon.
Slaapkamer 2 (ca. 4.19 x 4.17m) gelegen aan de achterzijde en voorzien van een Frans balkon en een elektrisch bedienbaar rolluik.

De nette badkamer is uitgerust met een ligbad, wastafel met meubel, een douche, vloerverwarming en een designradiator.

2e verdieping:
Overloop met aansluitingen voor de wasmachine en droger en een wastafel.
De twee slaapkamers aan de achterzijde zijn beide voorzien van een Frans balkon.
Aan de voorzijde is er een ruime berging, ideaal voor het opbergen van spullen.

Bijzonderheden:
+ Bouwjaar 2001, woonoppervlakte ca.174m2.
+ Verzorgde achtertuin gelegen op het westen met vrij uitzicht over het water.
+ Eigen oprit geschikt voor 3 auto's en een garage.
+ Stadsverwarming.
+ Voorzieningen zoals scholen, winkels en openbaar vervoer zijn gelegen op loopafstand.
+ Oplevering in overleg, conform Lijst van Zaken.

Wij nodigen je van harte uit om deze ruime woning met eigen ogen te bewonderen.

Alle verstrekte informatie moet beschouwd worden als een uitnodiging tot het doen van een bod of om in onderhandeling te treden. De teksten en impressies zijn bedoeld om een goede indruk te geven van het object. Aan de inhoud ervan is de grootst mogelijke zorg besteed. Desondanks is alle informatie nadrukkelijk onder voorbehoud. Er kunnen geen rechten worden ontleend aan deze woninginformatie.

Koopovereenkomst pas rechtsgeldig na ondertekening:
Een mondelinge overeenstemming tussen de particuliere verkoper en de particuliere koper is niet rechtsgeldig. Met andere woorden: er is geen koop. Er is pas sprake van een rechtsgeldige koop als de particuliere verkoper en de particuliere koper de koopovereenkomst hebben ondertekend. Dit vloeit voort uit artikel 7:2 Burgerlijk Wetboek. Een bevestiging van de mondelinge overeenstemming per e-mail of een toegestuurd concept van de koopovereenkomst wordt overigens niet gezien als een 'ondertekende koopovereenkomst'.

Toelichtingsclausule Meetinstructie:
De woning is conform de Branchebrede Meetinstructie (BBMI) opgemeten. De Meetinstructie is bedoeld om een meer eenduidige manier van meten toe te passen voor het geven van een indicatie van de gebruiksoppervlakte. De Meetinstructie sluit verschillen in meetuitkomsten niet volledig uit, door bijvoorbeeld interpretatieverschillen, afrondingen of beperkingen bij het uitvoeren van de meting.

Kenmerken

Overdracht
Vraagprijs
€ 998.000 k.k.
Status
beschikbaar
Aanvaarding
in overleg
Bouw
Soort woonhuis
Eengezinswoning
Soort bouw
geschakelde woning
Bouwjaar
2001
Energieklasse
A
Soort dak
lessenaardak
Slaapkamers
4
Badkamers
1
Oppervlakten en inhoud
Woonoppervlakte
174 m2
Overige inpandige ruimte
20 m2
Externe bergruimte
2 m2
Inhoud
685 m3
Perceeloppervlakte
635 m2
faciliteiten
Mechanische ventilatie
Rolluiken
Buitenzonwering
Frans balkon
Glasvezel kabel
Aan water
In woonwijk
Beschutte ligging
Baerz & Co Property Brochure

Brochure

Informatie / bezichtigingsaanvraag

Video's

Foto's

Plattegronden