Society World werkt intensief samen met Baerz & Co Luxury Homes International, het trefpunt waar exclusieve huizen en veeleisende kopers samenkomen. Hieronder vindt u een geselecteerd aanbod van de meest exclusieve huizen op alle hot-spots in 20 landen rond de Middellandse zee, de Alpen, Mexico en Dubai.

BERGEN OP ZOOM
Lievevrouwestraat 54 - 4611 JL
Nederland

Tristan Helmig profile image
Tristan Helmig
Makelaar / Taxateur
€725.000 k.k.
Woonoppervlakte
269m2
Perceeloppervlakte
112m2
Slaapkamers
4

Omschrijving

In een van de mooiste straten van Bergen op Zoom gelegen bijzonder en historisch Rijksmonument ‘De Eycke’. Het object ademt karakter, allure en biedt voldoende ruimte voor een compleet gezin.

Op de begane grond treft u o.a. een royale woonkamer welke en suite afsluitbaar is d.m.v. schuifdeuren en beide ruimtes zijn vv. een open haard. Aan de achterzijde bevindt zich de sfeervolle woonkeuken. Tussen de achterkamer en woonkeuken is een prachtig lichtinval vanuit het hoofddak d.m.v. 4 dakramen.
De verdieping is ingedeeld d.m.v. 2 royale slaapkamers waarvan de kamer voor in gebruik is als werkkamer en de kamer achter in gebruik is als hoofdslaapkamer met toegang tot de badkamer en ruime inloopkast.
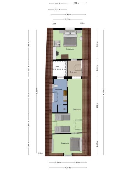
Op de 2e verdieping bevindt zich een ruime overloop met logeermogelijkheden als eveneens 2 ruime slaapkamers met een 2e complete badkamer en wasruimte.
Uniek is de gewelvenkelder met waterput, gebouwd omstreeks 1600 en ideaal te gebruiken als hobbyruimte, wijnkelder, diner/borrelen met vrienden, etc.

Verder is het object vv. een stadstuin bereikbaar vanuit de woonkeuken en een dakterras bereikbaar via de hoofdslaapkamer.

De ligging is prachtig met zicht op de Gevangenepoort en op loopafstand van alle voorzieningen.
Parkeren kan in de omgeving met vergunning. Tevens is er een mogelijkheid tot het huren/kopen van een parkeerplaats in de omgeving.

Nieuwsgierig en graag een keer ter plaatse kijken? Wij nodigen u graag uit voor een bezichtiging!

INDELING:
Begane grond:
Hal/vestibule met inbouwkasten en trap naar de 1e verdieping, wandafwerking stucwerk, tegelvloer, plafond afgewerkt met stucwerk;

meterkast met 14 groepen, krachtstroom, 4 aardlekschakelaar en glasvezelaansluiting;

luxe en royaal betegeld toilet met een wandcloset, urinoir en een fonteintje;

woonkamer, verdeeld in een voor- en achterkamer met schuifdeur, voorzien van 2-tal schouwpartijen met een open haard, wandafwerking stucwerk, houten vloer, plafond afgewerkt met stucwerk;

open woonkeuken, waarin geplaatst een in de lengte opgestelde inbouwkeuken met kookeiland, voorzien van een granieten aanrechtblad met een spoelbak, inbouw 5-pits gaskookplaat, -opstelplaats Amerikaanse koel/vriescombinatie, -stoomoven, - 2-tal warmhoudlades, -vaatwasser en een afzuigkap, wandafwerking stucwerk, tegelvloer, plafond afgewerkt met spuitwerk vv. inbouwspots, tuindeuren naar tuin/terras;

bijkeuken met close in boiler en aanrechtblok vv. spoelbak, wandafwerking stucwerk, tegelvloer, plafond afgewerkt met stucwerk;

royale kelder (anno ca. 1600), voorzien van verwarming, elektra en een waterput.

1e verdieping:
Overloop met een 4-tal bergkasten en een vaste trap naar de 2e verdieping, wandafwerking stucwerk, houtenvloer, plafond afgewerkt met stucwerk;

royale slaapkamer voor met een inbouwkastenwand, wandafwerking stucwerk, houten vloer, plafond afgewerkt met stucwerk;

hoofdslaapkamer achter, wandafwerking stucwerk, PVC-vloer, plafond afgewerkt met stucwerk, tuindeuren naar dakterras en glazen schuifdeur naar de badkamer;

dakterras, voorzien van vlondervloer en elektra;

betegelde badkamer en-suite, voorzien van een vrijstaand ligbad, inloopdouche, infrarood sauna, badkamermeubel met een wastafel en een deur naar separaat toilet en inloopkast;

separaat betegeld toilet, met een wandcloset.

2e verdieping:
Overloop met opstelplaats HR-combiketel en een 3-tal dakramen, wandafwerking stucwerk, PVC-vloer, schuine dakvlakken afgewerkt met stucwerk;

slaapkamer voorzijde met een dakkapel en een airco-installatie, wandafwerking stucwerk PVC-vloer, schuine dakvlakken afgewerkt met stucwerk;

slaapkamer achterzijde met een airco-installatie, wandafwerking stucwerk PVC-vloer, schuine dakvlakken afgewerkt met stucwerk;

betegelde badkamer, voorzien van een inloopdouche, badkamermeubel met een wastafel, wandcloset, wasmachine-/drogeraansluiting en een dakraam.

Tuin:
Aangelegde stadstuin, terras bestraat met sierbestrating en voorzien van een elektra en tuinverlichting.

Bouwaard:
Woonhuis:
Traditioneel gebouwd, opgetrokken in metselbaksteen, begane grondvloer uitgevoerd in beton/hout, houten verdiepingsvloeren, onderschoten kap gedekt met pannen en platdakconstructie gedekt met bitumineuze dakbedekking.

Isolatie:
De woning is voorzien van spouwmuur- en dakisolatie alsmede van volledig isolerende beglazing en voorzetramen in houten kozijnen. Tevens is de woning aan de voor- en achterzijde van de begane grond onlangs vv. vacuumglas.

Verwarming en warmwatervoorziening:
De woning is voorzien van centrale verwarming. De HR-combiketel (fabricaat Remeha, bouwjaar 2009), is geplaatst op de 2e verdieping en voorziet tevens in warmwater. Tevens beschikt de woning over een close in boiler welke is geplaatst in de bijkeuken.

Kenmerken

Air conditioning
Overdracht
Vraagprijs
€ 725.000 k.k.
Status
beschikbaar
Aanvaarding
in overleg
Bouw
Soort woonhuis
Eengezinswoning
Soort bouw
tussenwoning
Bouwjaar
1881
Soort dak
samengesteld dak
Slaapkamers
4
Badkamers
2
Oppervlakten en inhoud
Woonoppervlakte
269 m2
Overige inpandige ruimte
0 m2
Gebouwgebonden buitenruimte
19 m2
Inhoud
954 m3
Perceeloppervlakte
112 m2
faciliteiten
Airconditioning
Dakraam
Sauna
Glasvezel kabel
Natuurlijke ventilatie
In centrum
Baerz & Co Property Brochure

Brochure

Video’s

Plattegronden

Helmig Makelaardij en Taxatieburo o.z. B.V.

Dorpsstraat 107
4661 HN Halsteren

info@helmigmakelaardij.nl
+31 164-685925

www.helmigmakelaardij.nl

Informatie / bezichtigingsaanvraag

Tristan Helmig profile image
Tristan Helmig
Makelaar / Taxateur

Een luxe woning kopen in Bergen op Zoom

Bergen Op Zoom biedt een unieke mix van monumentale woningen, dynamisch gemeenschapsleven en hoogwaardige dienstverlening. De aantrekkingskracht schuilt in de authentieke Nederlandse stedelijke ervaring, gericht op een veeleisend, internationaal publiek.