Society World werkt intensief samen met Baerz & Co Luxury Homes International, het trefpunt waar exclusieve huizen en veeleisende kopers samenkomen. Hieronder vindt u een geselecteerd aanbod van de meest exclusieve huizen op alle hot-spots in 20 landen rond de Middellandse zee, de Alpen, Mexico en Dubai.

BERGEN (NH)
Plein 32 - 1861 JZ
Nederland

Angeline Croonen profile image
Angeline Croonen
Real Estate Agent
€1.145.000 k.k.
Woonoppervlakte
180m2
Perceeloppervlakte
N/A
Slaapkamers
3

Omschrijving

Plein 32 Bergen, dit fijne en royale appartement over twee woonlagen en een ruime garagebox in de parkeerkelder, bevindt zich op een absolute toplocatie in het gezellige centrum van Bergen.

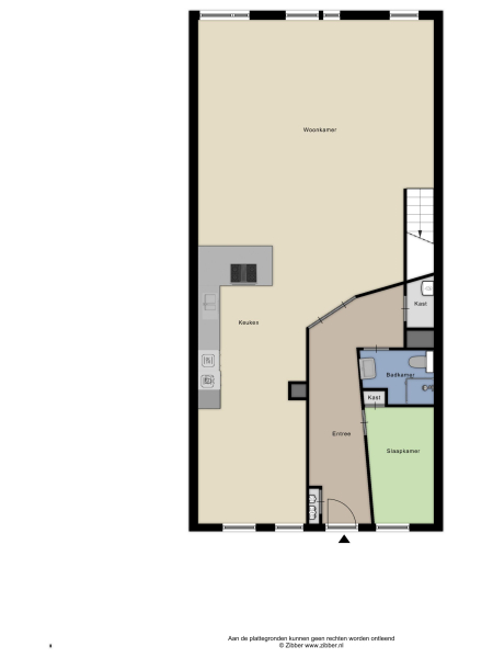
Via de centrale entree met trappenhuis en lift bereiken we hier het appartement. Via het ruime dakterras, gelegen op het zuiden, betreden wij via de voordeur het appartement. Bij binnenkomst in het appartement worden we verwelkomd in een ruime en lichte hal, waar voldoende ruimte is voor een garderobe. Hiervandaan toegang tot een slaapkamer, de eerste badkamer en de woonkamer.

De royale woonkamer is voorzien van grote raampartijen en twee lighttubes, die zorgen voor veel natuurlijk licht. De woonkamer beschikt daarnaast over twee sfeervolle zithoeken en ruimte voor een grote eettafel. De ruimte loopt over in de open keuken, volledig uitgerust met hoogwaardige inbouwapparatuur en voorzien van veel opbergruimte. Op deze verdieping bevindt zich tevens een kantoor/slaapkamer en de eerste badkamer met een douche, toilet en wastafel. Tevens hier de technische ruimte met plek voor de c.v.-ketel, warmte-terugwin unit en de verdeler voor de vloerverwarming.

Via de trap komen we op de eerste verdieping, hier bevinden zich twee ruime slaapkamers, beide met vaste kastruimte, en de tweede badkamer. Deze luxe badkamer is uitgerust met een ligbad, dubbele wastafel en een inloopdouche. Vanuit de achterste slaapkamer toegang tot een besloten balkon/terras op het zuiden.

Bij de woning hoort een ruime garage box, deze is te vinden in de garage onder dit appartementencomplex.

Locatie:
Gelegen in het hart van Bergen, midden in het centrum tussen de winkels, restaurants en andere voorzieningen. De nabijheid van het strand en de duinen maakt deze locatie bijzonder aantrekkelijk voor wie houdt van natuur, rust en ontspanning. Kortom, een prachtige woning op een fantastische en centrale locatie.

- Het gehele appartement is voorzien van vloerverwarming.
- Dankzij de goede isolatie en 8 zonnepanelen (2020 geïnstalleerd) hele lage energielasten.

Bent u nieuwsgierig geworden naar dit fijne en royale appartement dan maken wij graag met u een afspraak voor een bezichtiging!

Kenmerken

Overdracht
Vraagprijs
€ 1.145.000 k.k.
Status
beschikbaar
Aanvaarding
in overleg
Bouw
Soort woonhuis
Bovenwoning
Soort bouw
appartement
Bouwjaar
2003
Energieklasse
B
Soort dak
plat dak
Slaapkamers
3
Badkamers
2
Oppervlakten en inhoud
Woonoppervlakte
180 m2
Overige inpandige ruimte
0 m2
Gebouwgebonden buitenruimte
29 m2
Externe bergruimte
28 m2
Inhoud
596 m3
faciliteiten
Mechanische ventilatie
Tv kabel
Lift
Dakraam
Balansventilatie
In centrum
Baerz & Co Property Brochure

Brochure

Video’s

Plattegronden

Croon Makelaars

Breelaan 41
1861 GD Bergen

info@croonmakelaars.nl
+31 (0)72 743 32 44

www.croonmakelaars.nl

Informatie / bezichtigingsaanvraag

Angeline Croonen profile image
Angeline Croonen
Real Estate Agent