Society World werkt intensief samen met Baerz & Co Luxury Homes International, het trefpunt waar exclusieve huizen en veeleisende kopers samenkomen. Hieronder vindt u een geselecteerd aanbod van de meest exclusieve huizen op alle hot-spots in 20 landen rond de Middellandse zee, de Alpen, Mexico en Dubai.

BEEGDEN
Heerstraat-noord 63 - 6099 AW
Nederland

Jos Toussaint profile image
Jos Toussaint
NVM Makelaar - RM/RT
Price on request
Woonoppervlakte
426m2
Perceeloppervlakte
7190m2
Slaapkamers
6

Omschrijving

Deze parel in Beegden ligt op een zeer ruim perceel en wordt omsloten door een parkachtige tuin met een zwembad. Dit is werkelijk een droom die uitkomt! Aan de Heerstraat ligt dit bijzondere, sfeervolle landhuis dat beschikt over een panoramisch uitzicht over het achtergelegen gebied, gelegen op een aaneengesloten perceel van ruim 7.000 m2. Het uitzicht hier verveelt nooit! Door de grote glazen puien en vele ramen, is er optimaal contact met de fraai aangelegde tuin. Ook komt er hierdoor lekker veel daglicht binnen. Daarnaast beschikt deze comfortabele woning onder andere over: een ruime living, een luxe woonkeuken met kookeiland, een royale (slaap)kamer/kantoor op de begane grond, 5 (slaap)kamers op de eerste verdieping en maar liefst 3 badkamers. Ook aan de voorzijde van de woning wordt alles in luxe en stijl doorgevoerd. Zo is er bijvoorbeeld een eigen oprijlaan met een automatisch hekwerk. Eenmaal het perceel betreden, waan jij jezelf in een sprookje! De parkachtige tuin met zwembad, een oase van rust, biedt een diversiteit aan mogelijkheden. Dit mede door de aanwezige ruime loods.

De woning is volledig voorzien van vloerverwarming, heeft energielabel A, is geheel voorzien van houten kozijnen met isolerende beglazing en beschikt over 64 zonnepanelen.

Kortom: dit landhuis met uitstraling en karakter, ademt sfeer en gezelligheid. Het geheel biedt volop mogelijkheden door de aanwezigheid van kantoorruimtes, een dubbele garage en is hierdoor uitermate geschikt voor gebruik als kantoor/praktijk aan huis of zelfs als dubbele bewoning.

Indeling
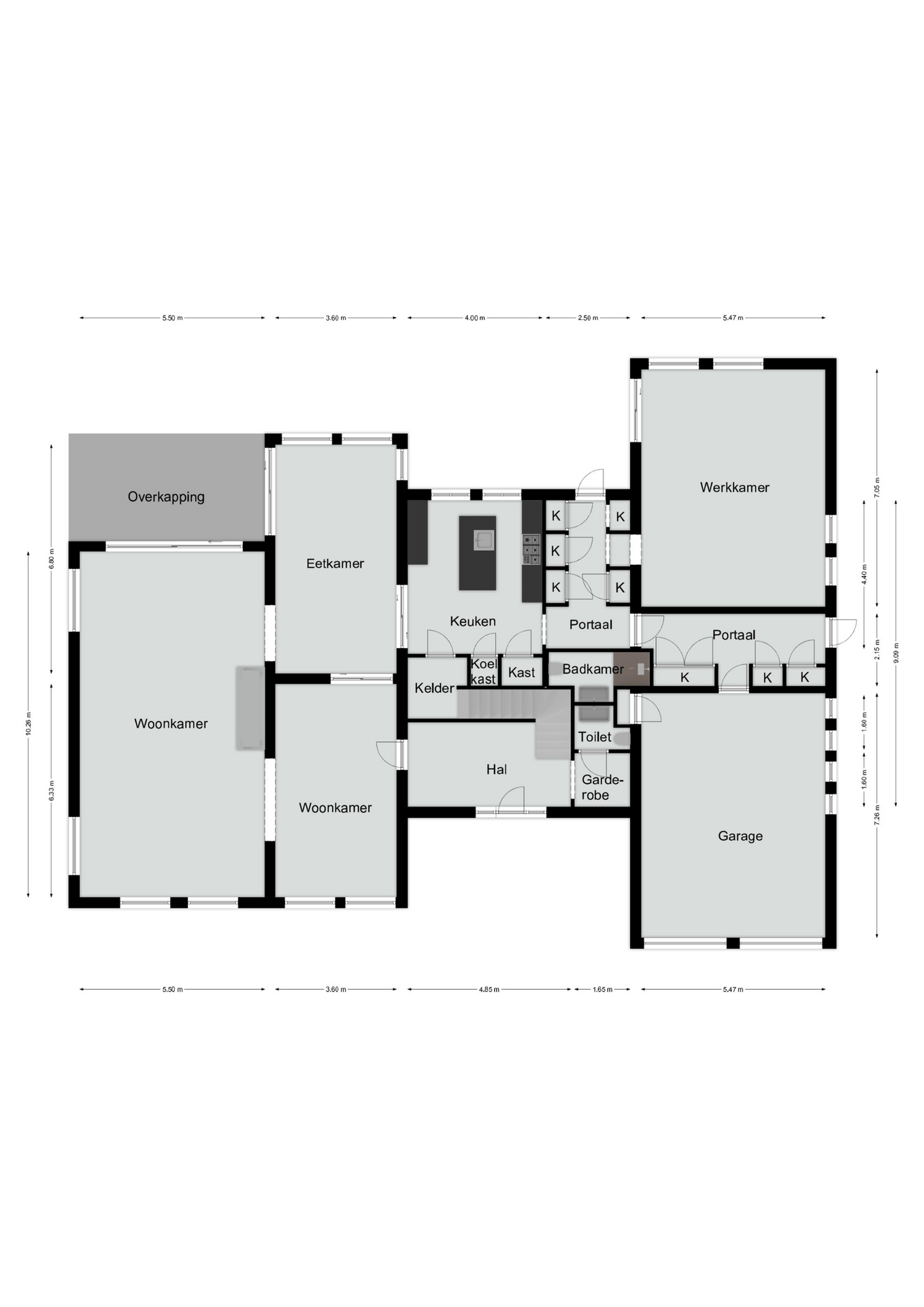
Via een toegangspoort met elektrische bediening, bereiken we het binnenterrein. Vanuit hier is er toegang tot de dubbele garage en de woning. Via de oprijlaan is tevens de loods bereikbaar. Deze bevindt zich aan de achterzijde van de woning.

Souterrain:
Bereikbaar vanuit de keuken. Het souterrain is verdeeld in twee delen: een praktische was-kelder, waar zich tevens de witgoedaansluiting bevindt, en een provisie- wijnkelder.

Begane grond:
We komen binnen in de ruime hal, waar we de trapopgang naar de eerste verdieping, de garderoberuimte en het gastentoilet vinden. Op de vloer ligt een doorlopende marmeren vloer, voorzien van vloerverwarming. We lopen door en komen vervolgens in de leefruimten. Bij binnenkomst ervaar je meteen de ruimtelijke en lichte opzet; zoveel manieren om deze ruimtes in te richten, de living met de sfeervolle haardpartij, de eetkamer grenzend aan keuken en de woonkamer aan de voorzijde. In de living zorgen de mooie grote raampartijen en de open verbinding met het overdekte terras voor een heerlijk open en ruimtelijk gevoel. De eetkamer, met aangrenzend de volledig uitgeruste keuken, is een droom voor menig Bourgondiër en staat garant voor vele uren kook- en bakplezier. Ook vanuit de keuken is er middels een schuifpui toegang tot het sfeervolle overdekte terras. De keuken bestaat uit: een spoeleiland met granieten blad, een vrijstaand 6-pits gasfornuis en losstaande kastenwanden, waardoor je over meer dan voldoende werk- en opbergruimte beschikt. Daarnaast is de keuken voorzien van diverse inbouwapparatuur (vaatwasser, koelkast). Een heerlijke plek waar jij de chef-kok in jezelf naar boven kunt halen!

Vanuit de keuken lopen we via een tussenhal, voorzien van diverse muurkasten en de meterkast, door naar het kantoor, de inpandige dubbele garage en de badkamer op de begane grond. Vanuit deze hal is er ook het achter de woning gelegen terras bereikbaar en is er toegang tot de oprit naast de woning gelegen, waardoor dit gedeelte ook van buitenaf bereikbaar is. Ideaal wanneer gekozen wordt voor een combinatie van werken en wonen of dubbele bewoning.
Het ruime kantoor van circa 40 m2, heeft ook een optimaal tuincontact en is voorzien van een fraaie haardpartij. Deze ruimte, nu in gebruik als kantoor, is uiteraard ook voor diverse andere doeleinden te gebruiken, zoals: slaapkamer op de begane grond. Badkamer voorzien van: inloop douche, toilet en wastafelmeubel.

Eerste verdieping:
Via de trap in de hal, bereiken we de eerste verdieping. Hier bevinden zich vijf (slaap)kamers en maar liefst twee badkamers. De master bedroom gelegen aan de achterzijde heeft een badkamer en-suite, een walk-in closet en een balkon aan de tuinzijde. Deze badkamer is voorzien van: een inloopdouche, ligbad, toilet, bidet en wastafelmeubel met dubbele wastafel. De overige vier slaapkamers zijn ook ruim van formaat. Mocht je niet alle kamers nodig hebben als slaapkamer, dan lenen deze zich ook perfect voor gebruik als hobbykamer of speelkamer voor eventuele kinderen.
Op de verdieping is nog een tweede badkamer voorzien van inloopdouche, toilet en badkamermeubel. Daarnaast is er de stookruimte waar de beide CV-ketels (Nefit Topline, 2009, eigendom) en de boiler zijn geïnstalleerd.

Tweede verdieping:
Bergzolder bereikbaar via een vlizotrap.

Tuin:
De woning wordt omringd door een parkachtige tuin, een oase van groen. Dit gaat absoluut een plek worden waar je in de zomer heerlijk buiten kunt genieten. De tuin biedt volledige privacy en is onder andere voorzien van: prachtige bomen, een gazon (voorzien van een grondwaterpomp en beregeningsinstallatie), diverse borders met verschillende soorten (vaste) beplanting en een royaal betegeld terras direct achter de woning en grenzend aan het zwembad. Het zwembad is de perfecte oplossing voor wat verkoeling op een warme zomerdag. Het betreft een volledig geautomatiseerd en professioneel aangelegd zwembad met roldek en jet stream. Tevens is er het Pool house waar tevens de pompinstallatie van het zwembad is geïnstalleerd.

Multifunctionele ruimte:
Mocht je hier nog niet voldoende aan hebben, dan is er ook nog de multifunctionele ruimte (loods, garage) die voor diverse doeleinden te gebruiken is. De loods heeft op de begane grond een vloeroppervlakte van ruim 120 m2 en een verdieping van circa 80 m2. De begane grond is opgedeeld in twee gedeelten middels een flexibele wand. Naast de trap is er ook een lift aangebracht waardoor de verdieping ook optimaal te gebruiken is. Deze multifunctionele ruimte is toegankelijk met de hoge dubbele toegangsdeuren en is op gedeeld in twee gedeelten. Uitstekend te gebruiken voor werk en hobby, en zelfs het realiseren van paardenstallen in deze ruimte is geen enkele probleem.

Kortom: een heerlijke toevoeging aan het geheel!

Bijzonderheden:
- Maar liefst 6 (slaap)kamers en 3 badkamers.
- Mogelijkheid van combinatie wonen en werken of dubbele woning.
- Energielabel A.
- Volledige isolatie, isolerende beglazing en volledig voorzien van vloerverwarming.
- Beide CV-installaties van 2009, maar in 2020 branders en binnenwerk vervangen.
- Zonnepanelen (64 stuks, 2022, eigendom).
- Volledige privacy door de vrije ligging.
- Alle dagelijkse voorzieningen binnen handbereik.
- Goede bereikbaarheid door de ligging aan de A2.

Omgeving:
Dit prachtige landhuis ligt op een centrale plek in Beegden. Dit charmante dorp is onderdeel van gemeente Maasgouw. Maak prachtige boottochten op de nabijgelegen rivieren, ontdek historische kastelen en verken schilderachtige wandelroutes door het glooiende landschap. De lokale gemeenschap in Beegden is hecht en gastvrij, en behoudt met trots de tradities die al generaties lang worden doorgegeven. Jaarlijkse evenementen, zoals dorpsfeesten en ambachtelijke markten, brengen bewoners en bezoekers samen. De A2 is binnen enkele autominuten bereikbaar, waardoor steden als Eindhoven, Sittard en Maastricht met de auto goed bereikbaar zijn. Daarnaast ligt het centrum van Roermond op steenworp afstand met haar Designer Outlet en het Retailpark.

Kenmerken

Zwembad
Zonnepanelen
Alarm system
Air conditioning
Overdracht
Prijs op aanvraag
Status
beschikbaar
Aanvaarding
in overleg
Bouw
Soort woonhuis
Landhuis
Soort bouw
vrijstaande woning
Bouwjaar
1980
Energieklasse
A
Soort dak
schilddak
Slaapkamers
6
Badkamers
3
Oppervlakten en inhoud
Woonoppervlakte
426 m2
Overige inpandige ruimte
130 m2
Gebouwgebonden buitenruimte
31 m2
Externe bergruimte
246 m2
Inhoud
2044 m3
Perceeloppervlakte
7190 m2
faciliteiten
Mechanische ventilatie
Alarminstallatie
Rolluiken
Tv kabel
Zwembad
Airconditioning
Rookkanaal
Schuifpui
Zonnepanelen
Aan drukke weg
In woonwijk
Vrij uitzicht
Open ligging
Landelijk gelegen
Baerz & Co Property Brochure

Brochure

Video’s

Plattegronden

Damen Makelaardij

Ambyerstraat-Noord 72
6225 EG Maastricht

j.toussaint@damen-og.nl
+31 433479090

www.damen-og.nl

Informatie / bezichtigingsaanvraag

Jos Toussaint profile image
Jos Toussaint
NVM Makelaar - RM/RT

Een luxe woning kopen in Beegden

Beegden staat voor stijlvol landleven, een hechte gemeenschap en discrete luxeservices. De internationale aantrekkingskracht steunt op privacy, waterligging en elegante woningen voor liefhebbers van uitmuntend vastgoed.