Society World werkt intensief samen met Baerz & Co Luxury Homes International, het trefpunt waar exclusieve huizen en veeleisende kopers samenkomen. Hieronder vindt u een geselecteerd aanbod van de meest exclusieve huizen op alle hot-spots in 20 landen rond de Middellandse zee, de Alpen, Mexico en Dubai.

AMSTERDAM, NH
Boymansweg 17 - 1064 WR
Nederland

Niels Eering profile image
Niels Eering
Real Estate Agent
€850.000 k.k.
Woonoppervlakte
167m2
Perceeloppervlakte
118m2
Slaapkamers
4

Omschrijving

Boymansweg 17 te Amsterdam

Bel nu voor het maken van een afspraak of voor het opvragen van een brochure van deze royale woning met inpandige garage, 4 slaapkamers en groot dakterras! Direct tegenover het Sloterpark en de Sloterplas!

Mogen wij even uw aandacht voor deze royale moderne -drive in - stadswoning met patio, dakterras en een woonoppervlakte van maar liefst 166 m²?! Op een heerlijk vrije en groene locatie ligt deze unieke woning, die een bijzondere combinatie van ruimte, licht en flexibiliteit biedt: ideaal voor gezinnen én voor wie wonen en werken graag wil combineren.

De woning ligt direct tegenover het Sloterpark en de Sloterplas, in de geliefde wijk Oostoever. Rustig wonen aan het groen en water, terwijl u binnen enkele minuten uitstekende verbindingen hebt naar de binnenstad, ringwegen en OV-knooppunten.

Indeling:
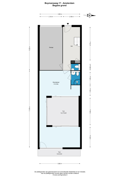
Begane grond:
U betreedt de woning via de entree aan de voorzijde. Hier bevindt zich ook de ruime inpandige berging/garage (21 m²), voorzien van elektra, water, verwarming en een elektrische deur. In de royale hal vindt u de meterkast, toilet en de trap naar boven.
Rondom de patio bevinden zich verder twee ruime kamers die in open verbinding met elkaar staan. De kamer aan de achterzijde beschikt over een eigen entree! Ideaal voor als je atelier, praktijk of kantoor aan huis wenst, maar geen bezoekers ‘door’ je huis wil.

Centraal op deze verdieping ligt de patiotuin (17 m²), bereikbaar via schuifpuien aan alle zijden. Een stille, besloten buitenruimte met veel privacy.

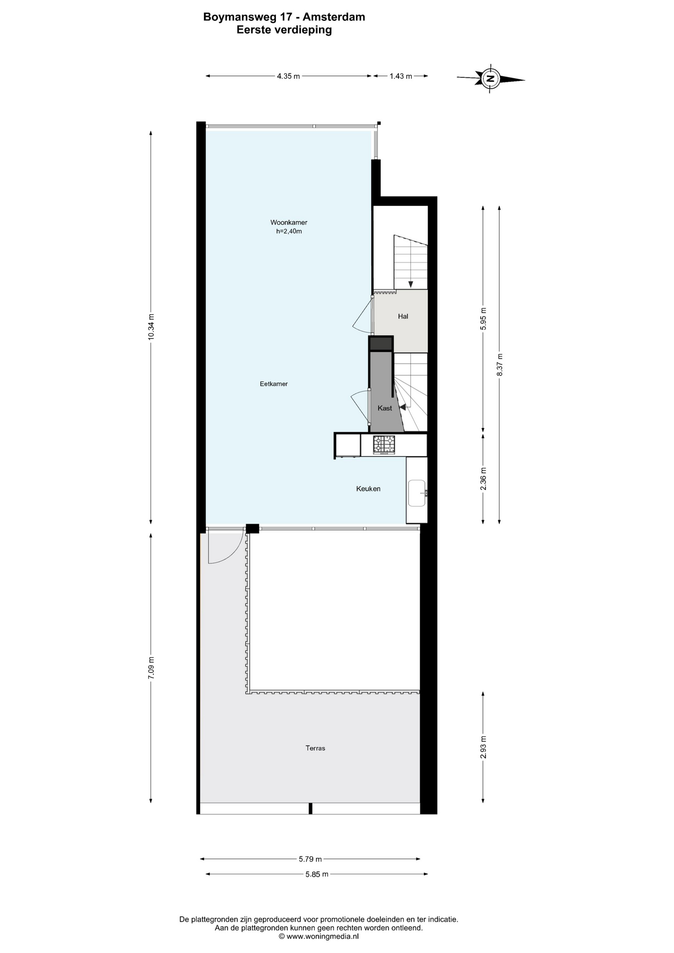
Eerste verdieping:
Vanaf de overloop bereikt u de brede en lichte living. Dankzij grote raampartijen aan beide zijden valt het daglicht rijkelijk binnen. De open keuken ligt aan de achterzijde.
Aan de keuken grenst het zéér ruime dakterras (circa 46 m²), ideaal voor zonnige dagen en lange avonden buiten.

Tweede verdieping:
De bovenste verdieping telt drie goed bemeten slaapkamers. De kamer aan de voorzijde, heeft toegang tot een balkon op het westen. Verder tref je hier een ruime badkamer en de CV-ruimte.

Buitenruimte:
De woning beschikt over meerdere prettige buitenruimtes. Wij noemend de patiotuin op de begane grond: besloten, rustig en onderhoudsvriendelijk. Het zéér grote dakterras op de eerste verdieping, met een ideale ligging voor zon en privacy. En op de tweede verdieping is er een balkon aan de voorzijde.

Locatie:
Werkelijk ideaal: de woning ligt recht tegenover het Sloterpark en de Sloterplas. Wandelen, sporten, spelen en recreëren kan letterlijk voor de deur. In de buurt Station Lelylaan en Sloterdijk lekker dichtbij. Met de fiets bent u binnen 20 minuten in het Centrum en in 10 minuten in Oud-West. En de auto? Binnen enkele minuten zit je op de A10, A4, A5 en de A9. In de wijk vindt u volop groen, speelplekken, winkels, horeca en scholen.

Parkeren gaat via parkeervergunningen (direct verkrijgbaar). Betaald parkeren is mogelijk voor bezoekers. En je eigen auto kan je uiteraard parkeren in je eigen garage!

Noemenswaardig:
- Royale drive-in stadswoning
- Gelegen aan het Sloterpark/de Sloterplas
- Woonoppervlakte: 166 m²
- Inpandige garage
- Eigen 2e opgang voor kantoor of atelier
- Dakterras 46 m² en Patio 17 m²
- 4 slaapkamers, 6 kamers totaal
- Bouwjaar: 1997
- Energielabel A
- Dak-, muur- en vloerisolatie + dubbel glas
- Oplevering in overleg

Een ruim en licht woonhuis, verrassend ingedeeld, uitstekend geïsoleerd, met een groot dakterras en uitzicht op het park. Kom het zelf ervaren – wij laten u deze bijzondere woning graag zien.

Kenmerken

Overdracht
Vraagprijs
€ 850.000 k.k.
Status
beschikbaar
Aanvaarding
in overleg
Bouw
Soort woonhuis
Eengezinswoning
Soort bouw
tussenwoning
Bouwjaar
1997
Soort dak
plat dak
Slaapkamers
4
Badkamers
1
Oppervlakten en inhoud
Woonoppervlakte
167 m2
Overige inpandige ruimte
21 m2
Gebouwgebonden buitenruimte
29 m2
Inhoud
607 m3
Perceeloppervlakte
118 m2
faciliteiten
Mechanische ventilatie
Tv kabel
Schuifpui
In woonwijk
Baerz & Co Property Brochure

Brochure

Video’s

11 Makelaars - Amsterdam Noord

Mt. Lincolnweg 36 - 617
1033SN Amsterdam

info@11makelaars.nl
+31 20 20 50 208

www.11makelaars.nl

Informatie / bezichtigingsaanvraag

Niels Eering profile image
Niels Eering
Real Estate Agent

Een luxe woning kopen in Amsterdam

Amsterdam biedt een kosmopolitische levensstijl, gekenmerkt door erfgoed, verbondenheid en discrete luxe. Bewoners profiteren van een sterke internationale gemeenschap, hoogwaardige dienstverlening en een bruisende cultuur. De blijvende aantrekkingskracht van de stad schuilt in de combinatie van geschiedenis, verfijning en een vooruitstrevende geest.