Society World werkt intensief samen met Baerz & Co Luxury Homes International, het trefpunt waar exclusieve huizen en veeleisende kopers samenkomen. Hieronder vindt u een geselecteerd aanbod van de meest exclusieve huizen op alle hot-spots in 20 landen rond de Middellandse zee, de Alpen, Mexico en Dubai.

LANDSMEER
Zuiderzeelaan 105 - 1121 RA
Netherlands

Niels Eering profile image
Niels Eering
Real Estate Agent
€798,011 k.k.
Living Area
132m2
Plot Size
147m2
Bedrooms
5

Description

Zuiderzeelaan 105, Landsmeer

Call now to schedule a viewing of this spacious and high-quality finished family home of approximately 132 m², located in a modern and highly sought-after residential area in Landsmeer. South-facing garden, situated on open water, and featuring energy label A!

A home where space, light, and comfort come together at a high level. Move-in ready and finished to perfection!

The property is located in a quiet, spacious, and child-friendly neighborhood with ample parking available right in front of the house. Landsmeer combines a green, village-like character with close proximity to Amsterdam. Within minutes you can reach the A10 ring road, and via the IJ tunnel you can quickly access the city. The NDSM Wharf is about a 15-minute bike ride away, and within 20 minutes you can reach the ferry to Amsterdam Central Station. The immediate surroundings offer various schools, shops, and sports facilities. Recreational area ’t Twiske is also nearby, offering plenty of opportunities for relaxation, nature, and outdoor activities.

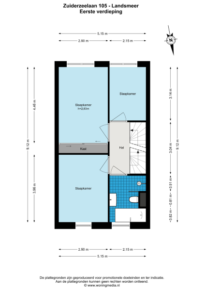
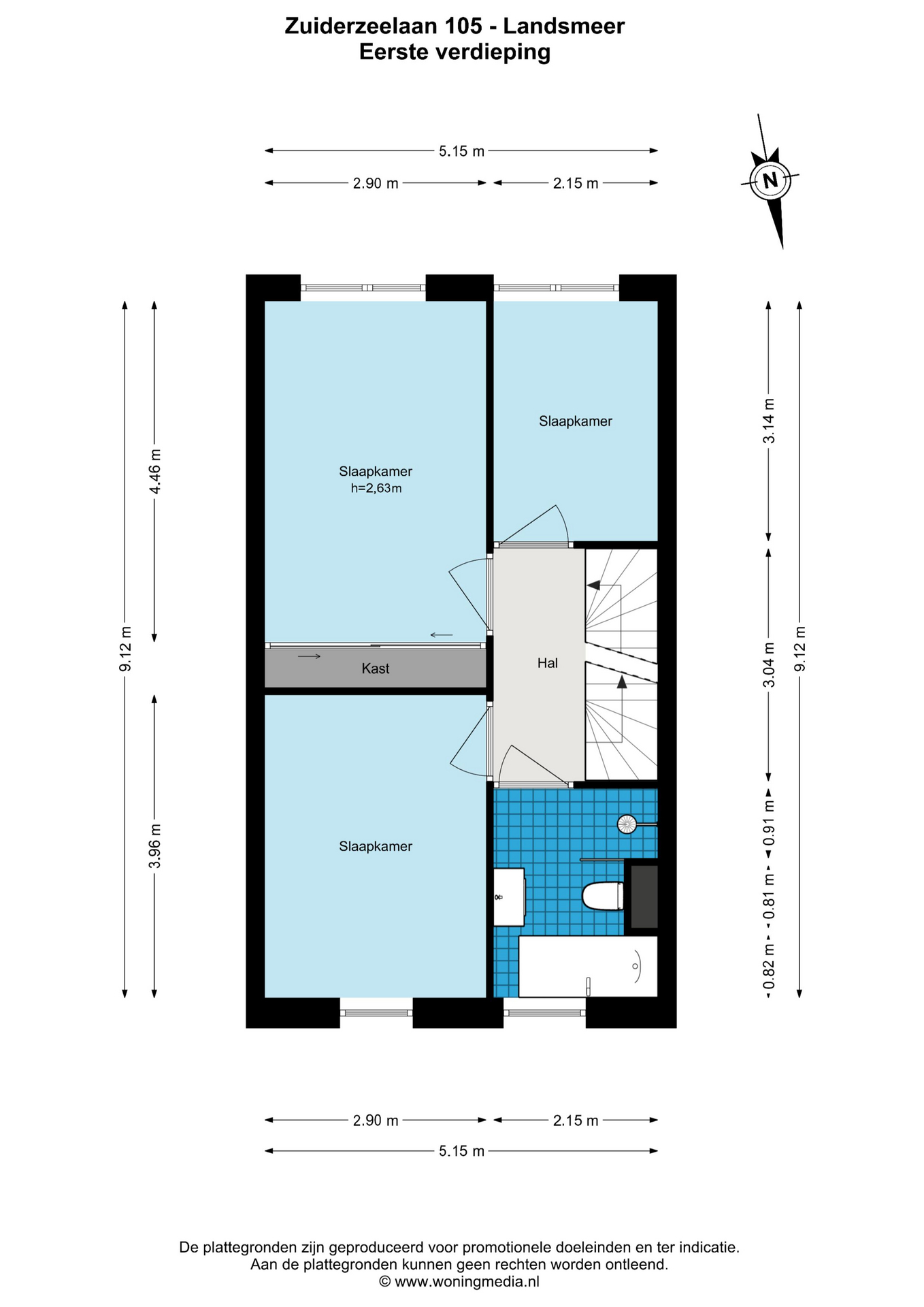
Layout
Ground floor
Through the entrance you enter the hallway with meter cupboard and a modern wall-mounted toilet with washbasin. At the front of the house is the open kitchen, equipped with various built-in appliances and a spacious countertop. The living room is located at the rear, with French doors providing access to the beautifully landscaped backyard. The ground floor also features a practical storage cupboard under the stairs.

First floor
The landing provides access to three well-proportioned bedrooms. The bedroom at the front and the two at the rear are all neatly finished and benefit from plenty of natural light. The modern bathroom is equipped with a bathtub, walk-in shower, second toilet, vanity unit, and designer radiator.

Second floor
A fixed staircase leads to the second floor. Here you will find two additional full-sized bedrooms, both with natural light. There is also a separate space with connections for a washing machine and dryer, as well as the technical installations.

Garden
The backyard is beautifully landscaped and well maintained, offering plenty of privacy. The garden includes a detached storage shed and rear access. A wonderful place to enjoy outdoor living in peace and quiet.

Highlights:
- Move-in ready family home
- No fewer than 5 bedrooms, ideal for families and/or working from home
- Beautifully landscaped south-facing garden with privacy, storage, and rear access
- Located in a popular, child-friendly neighborhood
- Close to both Amsterdam and ’t Twiske
- Living area approx. 132 m² (NEN 2580 measurement report available)
- Free parking in front of the house

Features

Transfer of ownership
Asking Price
€ 798.011 k.k.
Status
beschikbaar
Acceptance
in overleg
Construction
Kind of house
Eengezinswoning
Building type
tussenwoning
Construction period
2016
Energy rating
A
Roof type
zadeldak
Bedrooms
5
Bathrooms
1
Surface Areas And Volume
Living Area
132 m2
Other indoor space
3 m2
External storage space
5 m2
Volume in cubic meters
512 m3
Plot Size
147 m2
Facilities
Mechanische ventilatie
Tv kabel
Dakraam
Aan water
Aan rustige weg
In woonwijk
Vrij uitzicht
Aan vaarwater
Baerz & Co Property Brochure

Brochure

Videos

11 Makelaars - Waterland

Nieuwe Gouw 10-12
1121 GX Landsmeer

info@11makelaars.nl
+31 20 20 50 208

www.11makelaars.nl

Information / Viewing request

Niels Eering profile image
Niels Eering
Real Estate Agent

Buying a Luxury Property in Landsmeer

Landsmeer embodies harmonious living with access to premier services, natural beauty, and a sophisticated community. Its blend of privacy and cosmopolitan connection attracts a discerning, globally minded clientele.