 
	        		 
								Detached Family Home with Garage and Scenic Views by the River Rotte
In a unique location along the River Rotte, directly adjacent to the recreational areas Rottemeren and Het Lage Bergse Bos, lies this detached family home with a garage and stunning views at both the front and rear.
The surroundings offer endless recreational opportunities: enjoy walking, cycling, horse riding, or skating along the Rotte and through the Lage and Hoge Bergse Bos. Water enthusiasts will also feel right at home here — boating on the Rotte is possible, and a private jetty can be added if desired. Nearby you’ll find the ski slope, mountain bike trail, Zevenhuizerplas, Outdoor Valley, the Willem-Alexander rowing course, two petting zoos, and various restaurants and cafés. For daily shopping, you can head to Bergschenhoek, Ommoord (Hesseplaats), or Hillegersberg.
A truly beautiful location close to the city, yet surrounded by nature!
Highlights:
+Detached single-family home
+Beautiful location near the Rottemeren
+Option to build a private jetty
+Private driveway with garage
+Delivery in consultation, according to the List of Items
Layout
Driveway:
Spacious driveway with parking for multiple cars and access to the garage.
Ground floor:
Entrance hall with toilet, staircase to the first floor, and access to the living room and kitchen.
The bright and spacious living room at the front benefits from large windows and features a tiled floor with underfloor heating. Sliding doors open directly onto the garden. The dining area connects to the kitchen, which is arranged in an L-shape and equipped with various built-in appliances such as a dishwasher, fridge-freezer, ceramic hob, extractor hood, and sink with mixer tap.
From the kitchen, you have access to the integrated garage, which includes connections for the washing machine and dryer as well as the fuse box. The garage also provides access to the backyard.
Garden:
The spacious and sunny backyard faces northwest and offers wide, unobstructed views of the greenery and Het Lage Bergse Bos. An ideal spot for long summer evenings, social gatherings, or simply to relax and unwind.
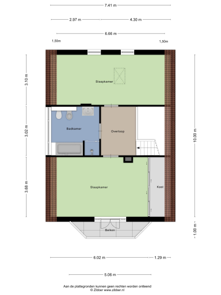
First floor:
Generous landing with access to all rooms.
Bedroom 1, located at the front, features built-in wardrobes and access to the balcony with stunning views over the River Rotte.
Bedroom 2, a large room at the rear, can easily be divided into two full-sized bedrooms. From this room, you can access the attic, where the central heating system is located.
The bathroom is fitted with a bathtub, toilet, bidet, shower, and washbasin with cabinet.
Additional Clauses in the Purchase Agreement:
As this property is over 30 years old, the age clause applies.
The non-occupancy clause applies to this property.
All information provided should be regarded as an invitation to make an offer or enter into negotiations. The descriptions and impressions are intended to give a good overall impression of the property. Although the greatest possible care has been taken, all information is expressly subject to change and no rights can be derived from this brochure.
Legal Notice
A purchase agreement is only legally binding once signed:
An oral agreement between a private seller and a private buyer is not legally binding. In other words, there is no sale until both parties have signed the written purchase agreement. This is in accordance with Article 7:2 of the Dutch Civil Code. Confirmation of an oral agreement by email or the sending of a draft purchase agreement does not count as a “signed purchase agreement.”
Measurement Instruction Clause
The property has been measured in accordance with the industry-wide Branchebrede Meetinstructie (BBMI). This measuring method aims to provide a more uniform way of determining the usable floor area. However, differences in measurement results may occur due to variations in interpretation, rounding, or limitations during the measuring process.
We act on behalf of the seller. We strongly advise you to engage your own real estate agent to represent your interests when purchasing your future home!
