Society World werkt intensief samen met Baerz & Co Luxury Homes International, het trefpunt waar exclusieve huizen en veeleisende kopers samenkomen. Hieronder vindt u een geselecteerd aanbod van de meest exclusieve huizen op alle hot-spots in 20 landen rond de Middellandse zee, de Alpen, Mexico en Dubai.

BAARLE-NASSAU
Oude Bredasebaan 17 - 5111 GA
Netherlands

Lennart van Oosterhout profile image
Lennart van Oosterhout
Real Estate Agent
€1,325,000 k.k.
Living Area
290m2
Plot Size
4545m2
Bedrooms
5

Description

Located on a unique and expansive woodland plot on the edge of Baarle-Nassau, this characterful and multifunctional residence is surrounded by a lush, park-like forest garden and several high-quality outbuildings.

This spacious villa offers a wealth of possibilities and is ideally suited for large families, multigenerational living, or running a home-based business or practice.

The surrounding forest garden ensures optimal privacy and blends harmoniously with the natural landscape. The presence of various solid outbuildings enhances the functionality and increases the usability of this extraordinary property.

Situated on the tranquil Oude Bredasebaan, amidst a rich, wooded landscape, you will find yourself in an area of unparalleled charm. Within a radius of 2 to 3 kilometers, you'll find numerous amenities such as primary schools, childcare facilities, a supermarket, and the village center.

GROUND FLOOR

HALL / ENTRANCE
Bright entrance hall with guest toilet, cloakroom, meter cupboard, and access to various rooms.

TOILET
The guest toilet is stylishly finished with natural stone tiles and features a wall-hung toilet with built-in reservoir, as well as a small washbasin.

METER CUPBOARD
The meter cupboard includes a completely renewed electrical installation with an extensive, modern circuit board and multiple residual-current devices (RCDs).

LIVING ROOM
The living room is the heart of the home and oriented towards the rear garden. The space is divided into several zones:

SITTING ROOM
The exceptionally spacious and bright sitting room, measuring approximately 9 by 6 meters, adjoins the garden, which can be accessed directly through two sliding doors. This room benefits from an abundance of natural light, creating a pleasant and warm atmosphere.

A charming fireplace is positioned between the sitting and dining areas, seamlessly connecting the two spaces.

DINING ROOM
Located on the side of the home, adjacent to the kitchen, and directly connected to the terrace and garden.

SIDE ROOM / REAR ROOM
A separate sitting room, ideal for use as a study, TV room, or similar purpose. This room connects to the hallway near the entrance and features air conditioning and a durable PVC floor.

KITCHEN
The kitchen is located at the front of the property and designed in a practical L-shape layout.

Features include a granite countertop with 1½ stainless steel sink and Quooker tap. Appliances include a dishwasher, induction hob, stainless steel extractor, refrigerator, two ovens, and a built-in espresso machine. The kitchen also features a dining area and a wall unit with countertop and ample cabinet space.

From the main hall, you have access to a corridor leading to the other rooms.

BEDROOM I
The primary bedroom, equipped with a custom-built wardrobe and sliding doors leading to a small balcony. The en-suite bathroom is accessible directly from this bedroom.

EN-SUITE BATHROOM
The bathroom is fitted with a bathtub, wall-hung toilet with built-in reservoir, urinal, bidet, walk-in shower, designer radiator, and a double washbasin integrated into a vanity unit. This bathroom can also be accessed directly from the corridor.

BASEMENT LEVEL

ENTRANCE / HALLWAY
Private (covered) entrance providing access to:

CLOAKROOM

TOILET
With wall-hung toilet, built-in reservoir, and small washbasin.

LIVING / STUDY ROOM
Beautiful living or working space with garden and terrace views. This bright room features large windows and is situated at the front of the house. A built-in cupboard contains the floor heating distribution unit.

BEDROOM / OFFICE II
This room offers direct access to the pantry/utility room.

CORRIDOR
Provides access to the staircase, bathroom, pantry, storage cupboard, and the adjacent bedroom/office.

PANTRY / UTILITY ROOM
On one side is a custom wall unit, while the opposite side has a countertop with stainless steel sink and overhead cabinets. This room also houses connections for laundry appliances.

BATHROOM
Fitted with a walk-in shower, wall-hung toilet with built-in reservoir, and a designer radiator.

BEDROOM / OFFICE III
Also equipped with a cupboard housing the underfloor heating unit.

This level is partially equipped with air conditioning.

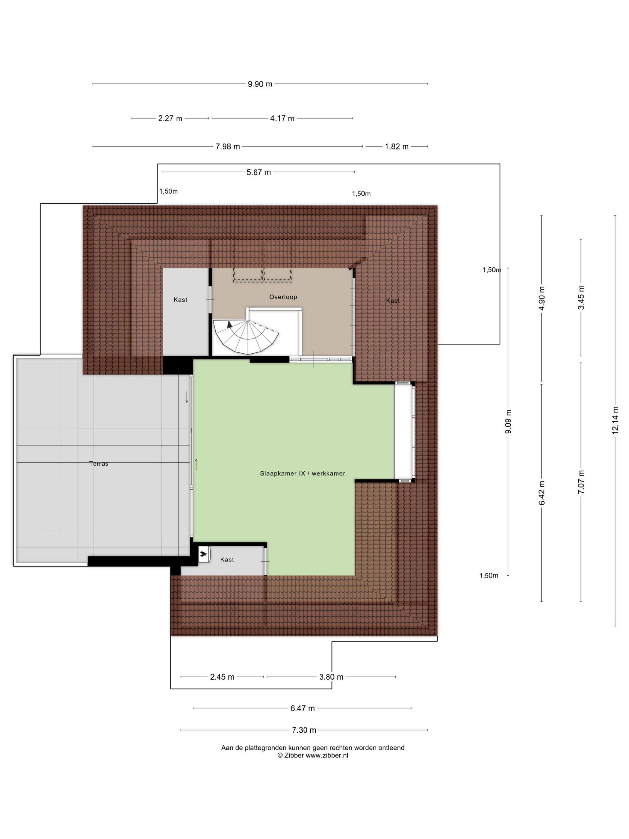
FIRST FLOOR

Bright landing with skylight and wall cabinets, providing access to:

FIXED STORAGE / CUPBOARD

BEDROOM / OFFICE / STUDIO
A fantastic, light-filled multifunctional space. This room can be used as a bedroom or divided into two separate rooms. It is also perfect for use as a living area, office, studio, etc. A large dormer window is located at the front, and a sliding door at the rear offers stunning views of the surrounding garden and woods. The sliding door opens onto a spacious flat roof, which could be converted into a large rooftop terrace with fantastic garden views.

In one corner of this room is a walk-in closet housing the central heating combi boiler. The space also has air conditioning.

GARDEN

The stunning, park-like (woodland) garden surrounds the home and offers complete privacy and the enjoyment of outdoor living. Its location is unique—quiet and green, yet close to all amenities.

The garden features multiple terraces (with sun and shade options at any time of day), a beautiful lawn, decorative paving, two ponds, and a rich variety of trees, plants, and shrubs.

The entire plot is fenced. At the front, there is a large parking area for five to six cars. Also at the front is a pond with a pump, alongside a charming wooden terrace. A second pond is located behind the house.

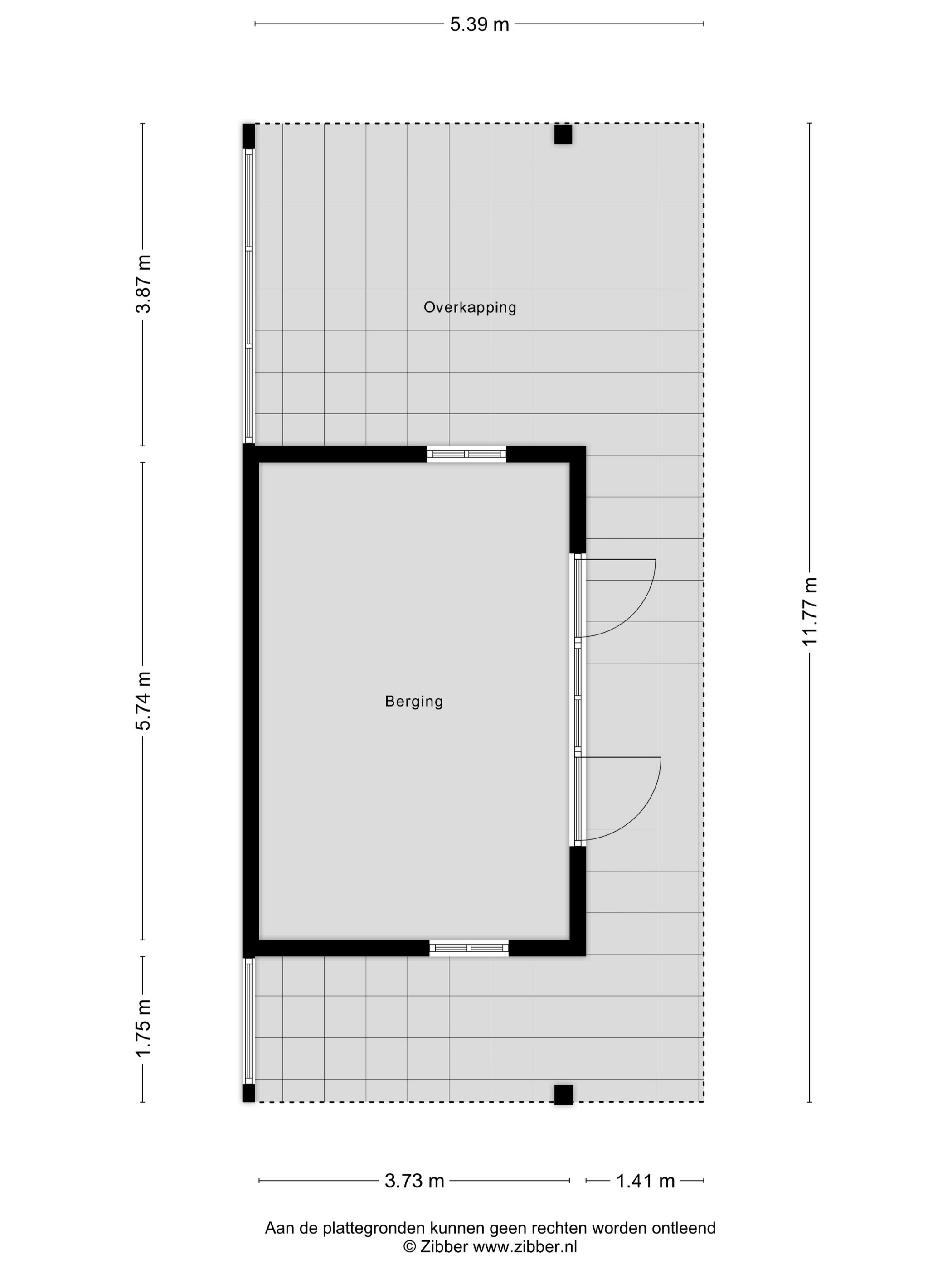
OUTBUILDINGS

OUTDOOR KENNEL
Dog enclosure, equipped with water and electricity.

GARDEN HOUSE
Equipped with water and electricity. The building is insulated and includes a covered area, ideal for an outdoor kitchen.

TERRACE
Adjacent to the house and living room, partially covered, and equipped with an outdoor fireplace.

ADDITIONAL INFORMATION

Both the garden and the house were architecturally designed/landscaped.

The fireplace is a so-called "lift-door fireplace" with a passive system that draws in cold air from below and releases warm air at the top.

The floors in the hall, toilet I, office, sitting room, dining room, bedroom I, and utility room are finished with Norwegian slate (‘Pillarguri’).

Asbestos clause:
The property may contain asbestos-containing materials. This is common in properties of this type and age. Any removal must comply with environmental regulations. The buyer acknowledges this and indemnifies the seller from liability.

Age clause:
The buyer is aware that the property is over 38 years old, meaning that the construction quality requirements are significantly lower than those for new homes. Contrary to article 6.3 of this purchase agreement, the absence of one or more characteristics necessary for normal use due to age is at the buyer’s risk.

Features

Alarm system
Air conditioning
Transfer of ownership
Asking Price
€ 1.325.000 k.k.
Status
beschikbaar
Acceptance
in overleg
Construction
Kind of house
Villa
Building type
vrijstaande woning
Construction period
1987
Energy rating
C
Roof type
samengesteld dak
Bedrooms
5
Bathrooms
2
Surface Areas And Volume
Living Area
290 m2
Other indoor space
0 m2
Exterior space attached to the buildinge
38 m2
External storage space
21 m2
Volume in cubic meters
1077 m3
Plot Size
4545 m2
Facilities
Mechanische ventilatie
Alarminstallatie
Tv kabel
Airconditioning
Frans balkon
Dakraam
Aan bosrand
Aan rustige weg
Beschutte ligging
In bosrijke omgeving
Baerz & Co Property Brochure

Brochure

Videos

Floor Plans

Storimans en Partners

Ginnekenweg 161
4818 JD Breda

lvanoosterhout@storimansenpartners.nl
+31 76 522 60 90

www.storimansenpartners.nl

Information / Viewing request

Lennart van Oosterhout profile image
Lennart van Oosterhout
Real Estate Agent

Buying a Luxury Property in Baarle-Nassau

Baarle-Nassau offers a blend of heritage, global connections, and elevated living. Distinct architecture, cultural richness, and tailored property services define the community’s enduring international appeal.