Society World werkt intensief samen met Baerz & Co Luxury Homes International, het trefpunt waar exclusieve huizen en veeleisende kopers samenkomen. Hieronder vindt u een geselecteerd aanbod van de meest exclusieve huizen op alle hot-spots in 20 landen rond de Middellandse zee, de Alpen, Mexico en Dubai.

AMSTELVEEN
Burgemeester Rijnderslaan 260 - 1185 MC
Netherlands

Sander Bovenkerk profile image
Sander Bovenkerk
Real estate agent
€1,350,000 k.k.
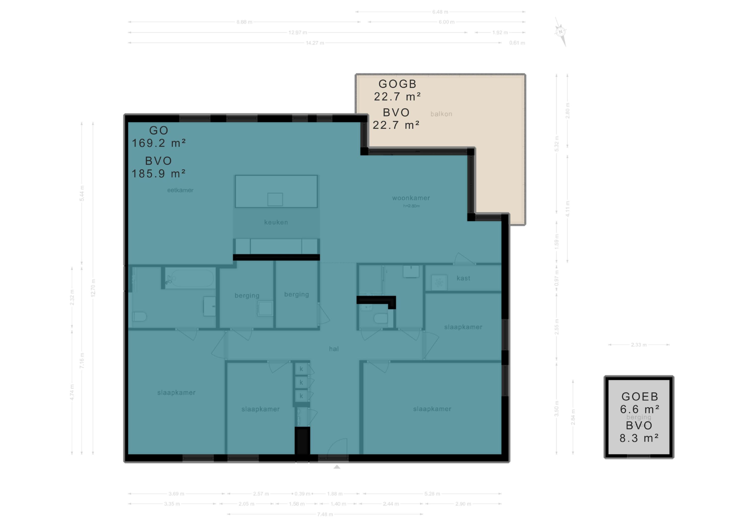
Living Area
169m2
Plot Size
N/A
Bedrooms
4

Description

THE MAYOR, NEW BUILD 2022, HIGH-QUALITY FINISHED APARTMENT OF ca. 170M2, 4 BEDROOMS, 2 BATHROOMS, SOUTHWEST FACING TERRACE, AND 2 PARKING SPACES

LAYOUT
The entrance is accessed via a private walkway. The spacious hallway provides access to all rooms and built-in wardrobe closets. The apartment features a herringbone-patterned PVC floor with underfloor heating and cooling throughout.

The beautiful, large living room receives abundant natural light through its many windows. The Siematic kitchen island is a true centerpiece, equipped with various built-in appliances including an induction hob with integrated extraction, oven, combination oven-microwave, Quooker, and a large refrigerator. There is also a separate pantry with space for a wine climate cabinet and freezer. The sunny balcony faces southwest, providing a delightful spot to relax and enjoy unobstructed views.

The property boasts 4 spacious bedrooms, with the master bedroom of approximately 17.5 m² featuring an air conditioning unit and an ensuite bathroom. This bathroom includes a bathtub, walk-in shower, toilet, heated towel rail, and a vanity unit.

The second bathroom is equipped with a shower, vanity unit, and a separate toilet with a sink. Additionally, there is a separate utility/storage room and a laundry room with ample space for your washer and dryer. The study room of approximately 18.5 m² is also equipped with an air conditioning unit.

The apartment is equipped with modern technologies such as a Heat Recovery Ventilation (HRV) and Heat Pump system. Enjoy the comfort of underfloor heating and cooling throughout the property. Furthermore, the living room also features an air conditioning unit.

This luxurious apartment includes a storage room and 2 parking spaces with charging stations. Both the storage room and parking spaces are located in the parking garage and are accessible by elevator.

Special features:

• Energy label: A+.
• Ceiling height is approximately 2.81 meters throughout most areas.
• Curtains are partially electrically operated.
• The apartment features HR++ glass windows.
• There is a contract with Eteck for the HRV and Heat Pump system.
• The monthly homeowners association (VVE) contribution is €322,48; for the parking spaces, it's €62,39 per month.
• There are 3 air conditioning units present.
• Located on freehold land (no ground lease)
• Delivery is subject to negotiation.

THE MAYOR
The Mayor in Amstelveen offers ultimate living, tailored to your lifestyle. A rare place where everything converges. Where luxury and comfort are palpable every day. Everything in perfect harmony. Surrounded by the Amsterdamse Bos, Amstelveen's Heemparken, and expansive polder landscapes. But also the charming and lively Stadshart shopping center and perfect accessibility. The Mayor surprises.

In the heart of Amstelveen, where an iconic office building once stood, The Mayor has risen. A truly unique residential project with international allure. Sustainable new construction with beautifully designed Garden Apartments, spacious Luxury Apartments, and stunning Penthouses. A stylish transformation in the most accessible location with plenty of luxury, space, and tranquility. This is what you've always been looking for.

ARCHITECTURE
The Mayor was designed by MVDS Architects from Amsterdam. The eight buildings vary in height and are designed to create an intense sense of spaciousness. The luxuriously finished living environment takes into account the housing wishes of future residents. Secure garages, stylish entrances, spacious balconies, and practically laid-out apartment floor plans. Architecture, class, design, and public greenery are visible everywhere. Transparent corridors and numerous elevators provide a swift route to the individual apartments.

The design of The Mayor's park-like surroundings and inner gardens comes from Lodewijk Baljon Landscape Architects. They are known for their craftsmanship using new techniques and materials. The landscape architects will also design the new Meander park, which will be realized on top of the submerged and covered A9 highway.

THE LOWERED HIGHWAY A9
The A9 roadway is being submerged, minimizing noise pollution. From the secure garage, you can access the highway without traffic lights. The Meanderpark will be situated on the 85-meter-wide covering over the A9. The park on the cover will feature a water feature, benches, a bike and footpath. In a few minutes, you will be able to stroll from The Mayor through the new Meanderpark to the Stadshart.

LOCATION
Amstelveen is an international city where business, culture, and leisure harmoniously converge, all within walking distance of The Mayor. The theater, pop venue P60, the Cobra Museum, and Cinema Amstelveen. The City Garden in the Stadshart shopping center offers a wide range of restaurants, cafes, and brasseries. And if you wish to visit Amsterdam, you can reach the Museumplein in just fifteen minutes by car. Amstelveen is home to two golf courses.

Did you know that Amstelveen has been one of the greenest municipalities in the Randstad for years? The ‘Amsterdamse Bos’ (forest) is very close by. To the east of The Mayor lies the vast area of Ouder-Amstel with the meandering river Amstel and expansive polder landscapes. Water sports enthusiasts can sail to the south to the Vinkeveense and Loosdrechtse Plassen.

AMENITIES
Centrally located in the design plan is the apartment building The Mayor. What makes it unique is that a bicycle path will be constructed underneath the building, connecting cyclists and pedestrians from Amstelveen-Noord to Amstelveen-Zuid. On the ground floor, you will find the service units of M-Exclusive: a range of services compiled at the request of the residents, which they can use unlimitedly. Planned facilities include a gym and a coffee corner. Notably, there will be a Concierge available. He assists with arranging postal packages, dry cleaning services, and taxi services. Upon request, he receives your guests. During vacations or absences, he looks after your apartment. Need a last-minute babysitter? Ask your concierge

Features

Transfer of ownership
Asking Price
€ 1.350.000 k.k.
Status
verkocht onder voorbehoud
Acceptance
in overleg
Construction
Kind of house
Bovenwoning
Construction period
2021
Energy rating
A+
Roof type
plat dak
Bedrooms
4
Bathrooms
2
Surface Areas And Volume
Living Area
169 m2
Other indoor space
0 m2
Exterior space attached to the buildinge
23 m2
External storage space
7 m2
Volume in cubic meters
576 m3
Facilities
Mechanische ventilatie
Tv kabel
Lift
Baerz & Co Property Brochure

Brochure

Videos

Floor Plans

Heeren Makelaars

Stadionweg 75
1077 SE Amsterdam

info@heerenmakelaars.nl
+31 204702255

www.heerenmakelaars.nl

Information / Viewing request

Sander Bovenkerk profile image
Sander Bovenkerk
Real estate agent

Buying a Luxury Property in Amstelveen

Amstelveen offers refined residences, a cosmopolitan atmosphere, and exceptional connectivity. The blend of green areas, international amenities, and community sophistication continues to captivate global buyers and families seeking both privacy and vibrant urban connections.