Society World werkt intensief samen met Baerz & Co Luxury Homes International, het trefpunt waar exclusieve huizen en veeleisende kopers samenkomen. Hieronder vindt u een geselecteerd aanbod van de meest exclusieve huizen op alle hot-spots in 20 landen rond de Middellandse zee, de Alpen, Mexico en Dubai.

'S-HERTOGENBOSCH
Kamperfoeliestraat 23 - 5213 HP
Netherlands

Eric Tiebosch profile image
Eric Tiebosch
Owner / Real Estate Agent
€2,350,000 k.k.
Living Area
320m2
Plot Size
1336m2
Bedrooms
8

Description

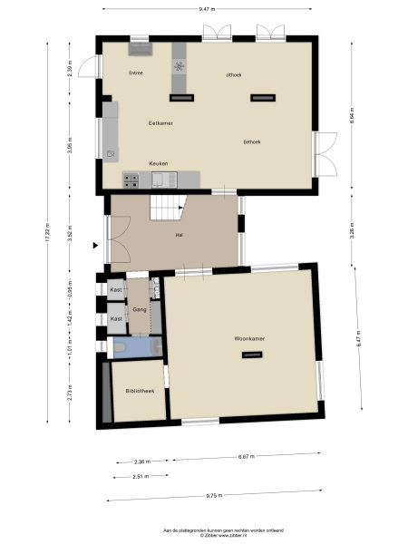
Vrijstaande villa in het Hinthamerpark.

Deze woning is gebouwd in de architectuur van “De Bossche School”. Door deze architectuur, maar ook door de omvang van het pand en het perceel, laat het zich niet vergelijken met andere woningen in de wijk. De architectuur garandeert de bewoner ruimtes met de juiste verhoudingen en mooie doorkijken. Er is een voorhuis en een achterhuis welke verbonden zijn door een hal en trappenhuis. Niet alleen het aantal slaapkamer, maar ook de grote leefruimtes, zorgen ervoor dat je hier als gezin heel royaal en comfortabel leeft. De grote tuin rondom doet dit ook. Er zijn diverse terrassen, een speelveld met volwassen bomen en een bloementuin aan het atelier. Dít is het huis waarvan de buurt zich afvroeg wanneer het te koop zou komen. Nu is dus uw kans.

Download de brochure hier op Funda of vraag een bezichtiging aan. We zijn u graag van dienst.

Features

Transfer of ownership
Asking Price
€ 2.350.000 k.k.
Status
beschikbaar
Acceptance
in overleg
Construction
Kind of house
Villa
Building type
vrijstaande woning
Construction period
1955
Roof type
dwarskap
Bedrooms
8
Bathrooms
2
Surface Areas And Volume
Living Area
320 m2
Other indoor space
18 m2
External storage space
39 m2
Volume in cubic meters
1253 m3
Plot Size
1336 m2
Facilities
Mechanische ventilatie
Natuurlijke ventilatie
Aan rustige weg
In woonwijk
Vrij uitzicht
Baerz & Co Property Brochure

Brochure

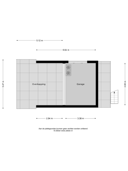
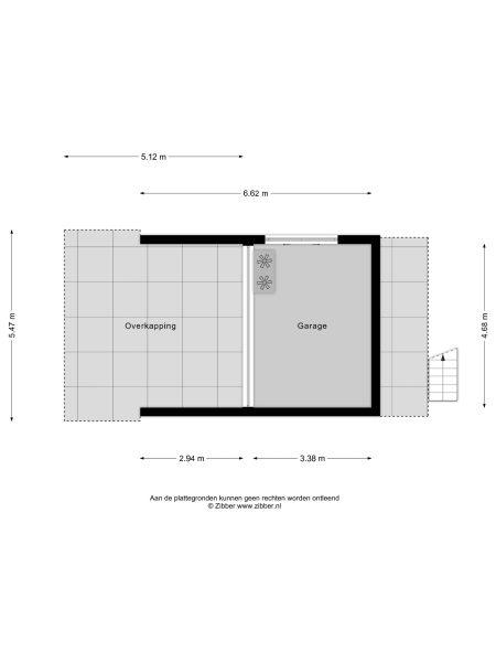
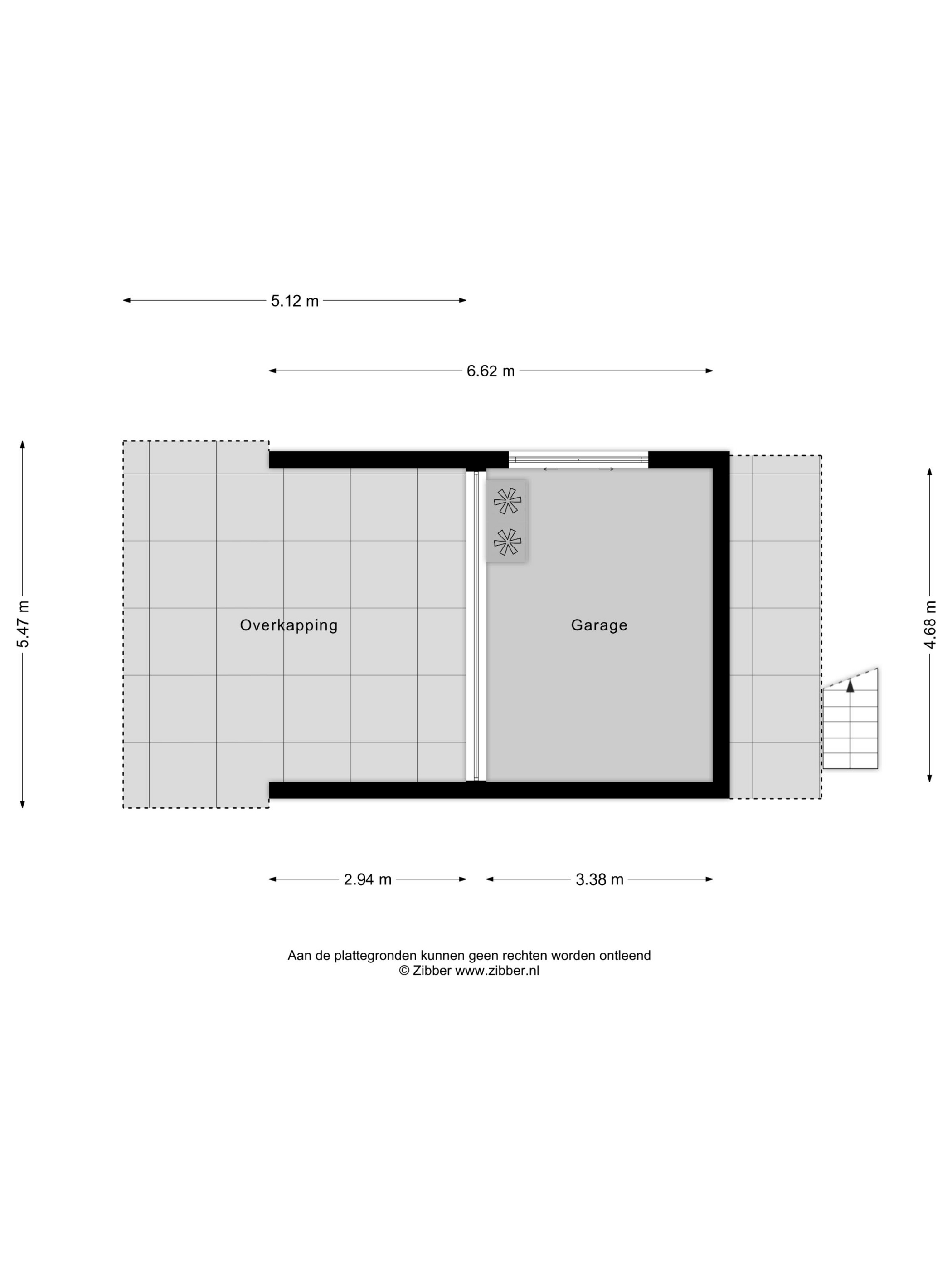
Floor Plans

De Huyzerij Makelaardij

Kruisstraat 2
5211 DV 's-Hertogenbosch

eric@dehuyzerij.nl
+31 736122225

www.dehuyzerij.nl

Information / Viewing request

Eric Tiebosch profile image
Eric Tiebosch
Owner / Real Estate Agent

Buying a Luxury Property in 's-Hertogenbosch

's-Hertogenbosch offers a refined blend of history, culture, and contemporary living, attracting a globally minded community who value privacy, aesthetics, and seamless services within a vibrant, authentic Dutch environment.